EasyManua.ls Logo

Bitzer CSH8563-125Y - Page 67

Bitzer CSH8563-125Y
124 pages
Go to English
Print Icon
To Next Page IconTo Next Page
To Next Page IconTo Next Page
To Previous Page IconTo Previous Page
To Previous Page IconTo Previous Page
Loading...
SB-170-10 67
Ø21
DL
2 ( )HP
1/8-27 NPTF
1 ( )HP
1/8-27 NPTF
2a ( )HP
G 1/4
8
4
5
5/8-18 UNF
SL
22
3a ( )LP
G 1/4
3 ( )LP
1/8-27 NPTF
23
Vi (+) Vi (-)
CR (-) CR (+)CR (-)
12
1/8-27 NPTF
13
17
394
70
237
1113
2354
450
520
94
898
1036
901
30
294 138
1134
M48x1,5 M48x1,5
9 18
16
580
650
130
6
1/4-18 NPTF
368
606
242
16
12
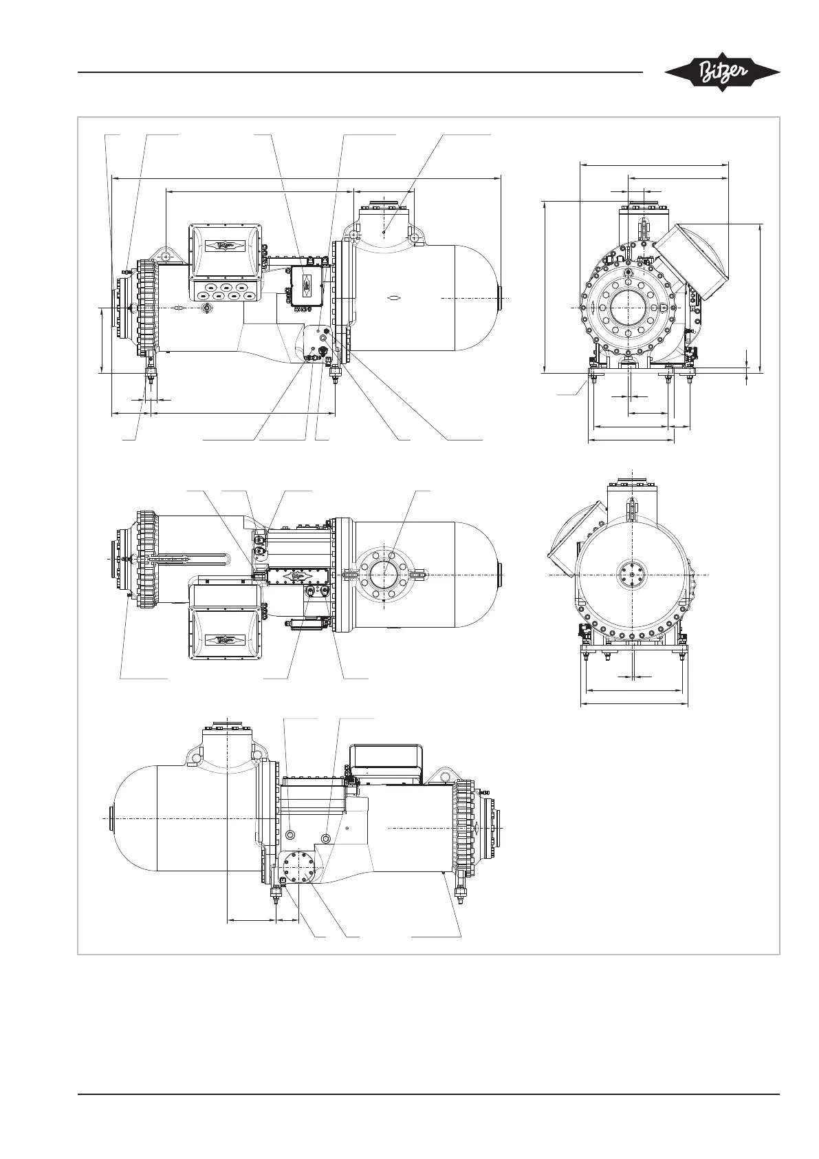
Fig.16: Dimensional drawing CS.105
Legend for connections, see table 8, page 68.

Table of Contents

Related product manuals