EasyManua.ls Logo

Blaze 400 D - Page 14

Blaze 400 D
67 pages
Print Icon
To Next Page IconTo Next Page
To Next Page IconTo Next Page
To Previous Page IconTo Previous Page
To Previous Page IconTo Previous Page
Loading...
1-800-486-4328
1-204-633-1999
100 Eagle Drive
Winnipeg, MB Canada
sales@hermannelson.com
www.hermannelson.com
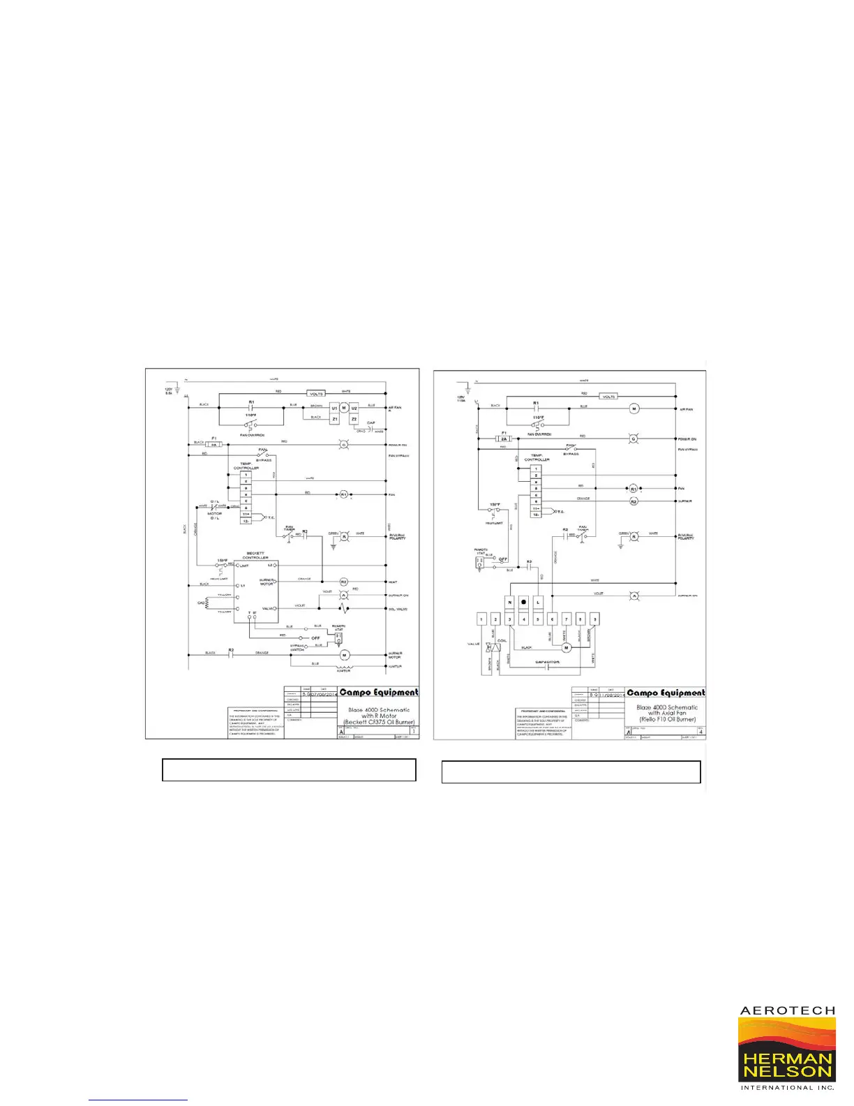
Blaze 400D Sch. with Axial Fan-F10 Oil Burner
Blaze 400D Sch. with R Fan-Beckett CF375
CAMPO EQUIPMENT CO. LTD. (ECOBLAZE)
6 Carson Court, Brampton, ON, CANADA, L6T 4P8
Tel: (905) 793-2525 | Fax: (905) 793-8768 | www.campoequipment.com Page | 14

Related product manuals