EasyManua.ls Logo

Blaze 400 D - Page 43

Blaze 400 D
67 pages
Print Icon
To Next Page IconTo Next Page
To Next Page IconTo Next Page
To Previous Page IconTo Previous Page
To Previous Page IconTo Previous Page
Loading...
1-800-486-4328
1-204-633-1999
100 Eagle Drive
Winnipeg, MB Canada
sales@hermannelson.com
www.hermannelson.com
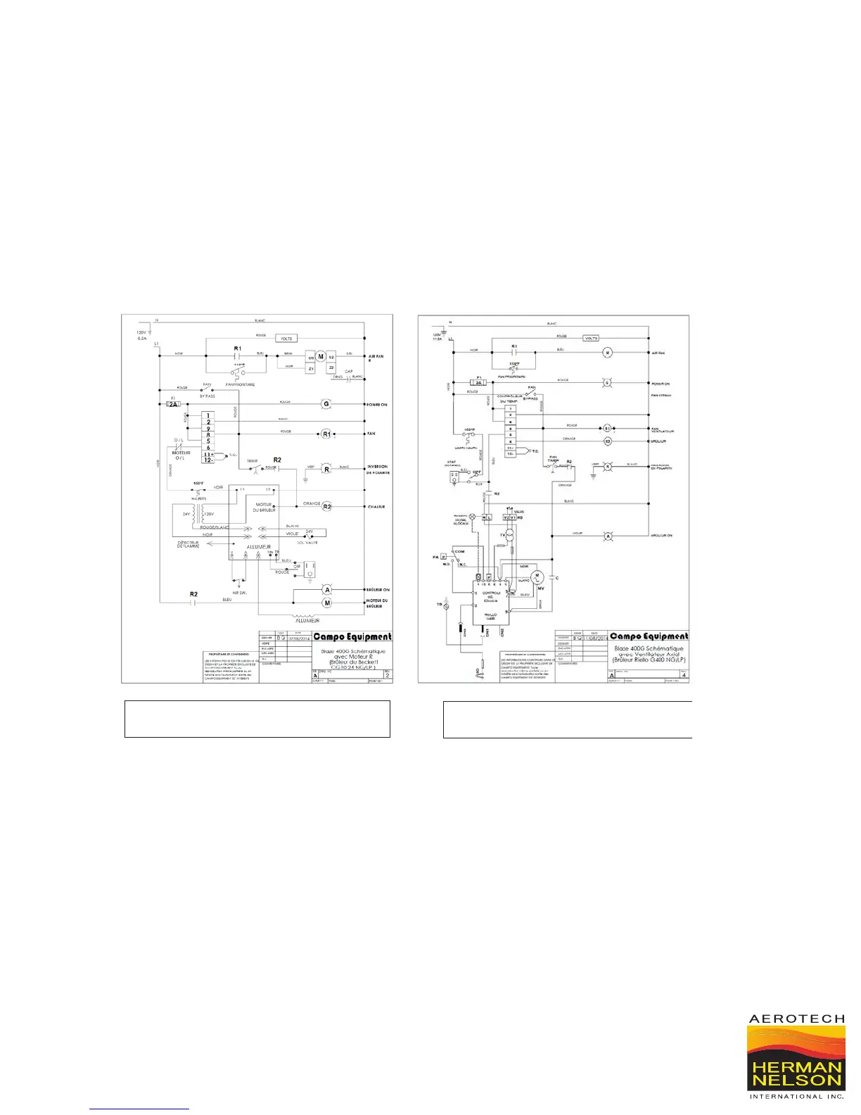
Blaze 400G Schématique avec Ventilateur Axial
(Brûleur Riello G400 NG/LP)
Blaze 400G Schématique avec Moteur R
(Brûleur du Beckett CG10-24 NG/LP)
CAMPO EQUIPMENT CO. LTD. (ECOBLAZE)
6 Carson Court, Brampton, ON, CANADA, L6T 4P8
Tel: (905) 793-2525 | Fax: (905) 793-8768 | www.campoequipment.com Page | 43

Related product manuals