EasyManua.ls Logo

Blitz GHUSE Series - Page 24

Blitz GHUSE Series
44 pages
Print Icon
To Next Page IconTo Next Page
To Next Page IconTo Next Page
To Previous Page IconTo Previous Page
To Previous Page IconTo Previous Page
Loading...
124661
Hubeinheit komplett Blitz S 15 Vario
Schmid
22/06/17
Blatt 2
von 5
012345678910
BlitzRotary GmbH
Hüfinger Straße 55
78199 Bräunlingen
325 22
29
36
43
51
13
6
30
19
45
46
57
10
40
9
26
44
56
41
16
2
8
11
42
27
20
4923
21
48
21
48
41
42
40
35
33
18
24
31
34
32
7
52
53
1
47
54
50
12
55
37
P
os.
Stk
.
D
escr
i
p
ti
on
(
en
)
Order-No.
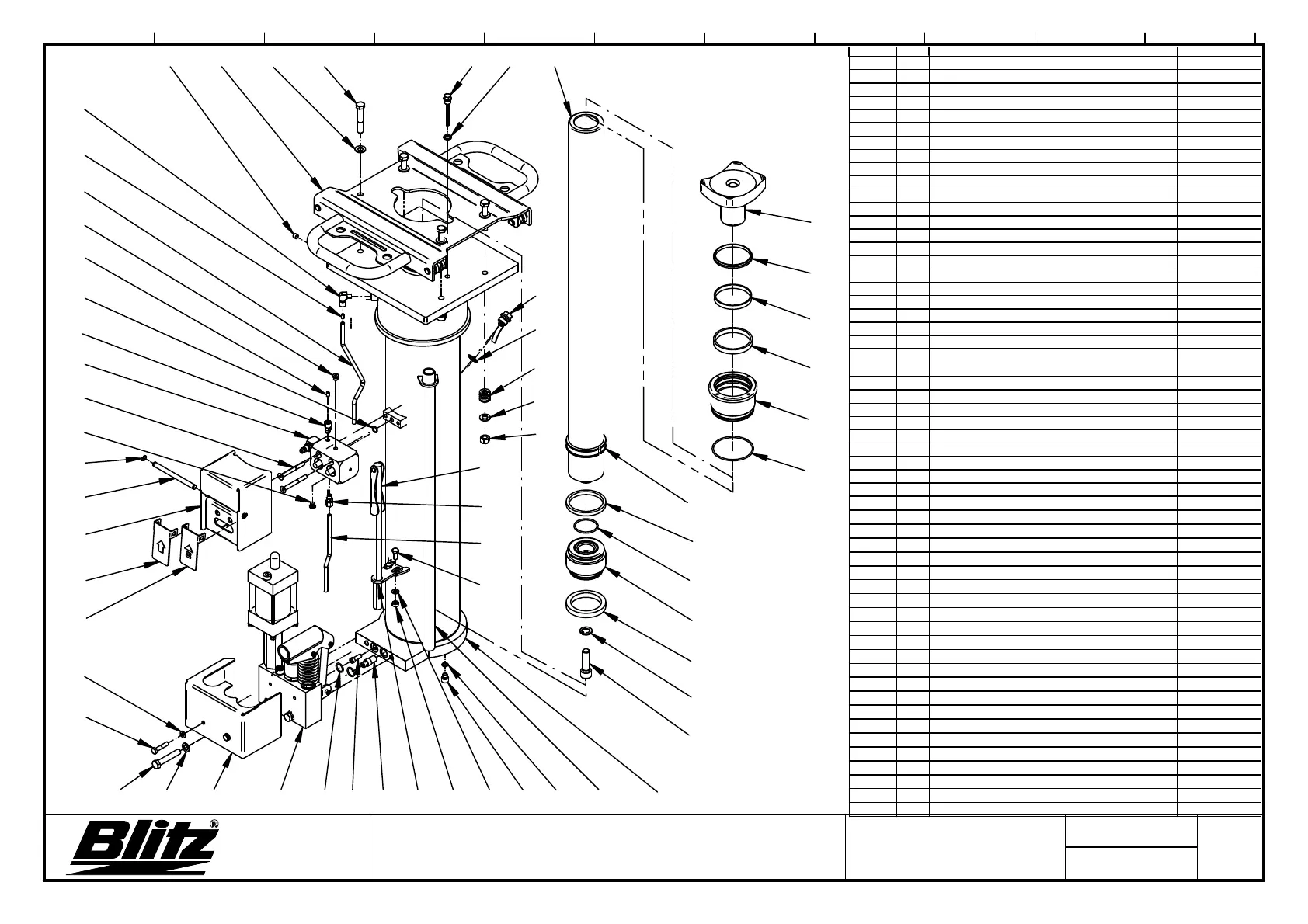
1 1 Lifting unit welded 15t 124662
2 2 O-ring 18 x 2.5 707614
3 1 Sieve insert cpl. 3142015
6 1 Piston 3264350
7 1 Piston seal 90 x 70 x 12 123148
8 1 Piston seal 90 x 78 x 8.5 707842
9 1 Spring washer DIN 127-A16 galv 7035070
10 1 Cylinder screw ISO 4762-M16x55 700885
11 1 O-ring 49 x 3 707667
12 1 Piston rod 15t 124685
13 1 Spacer bushing 125172
14 1
Sealin
g
rin
g
Cu R 1/2"
706812
15 1 Dipstick cpl. 3260336
16 1 Sealing ring Cu R 1/4" 706902
17 1 Dipstick cpl. 1/4" 109162
18 1 Lowering brake valve 751702
19 1 Rod holders 3298372
20 2 Hexagon bolt ISO 4017-M8x20 700206
21 4 Washer ISO 7089-8,4 galv 703411
22 2 Hex nut ISO 4032-M8 galv 703102
23 1 Locking screw DIN 906-R1/8” galv 701601
24 1 Ermeto screw fitting WE08LLR galvanized 752020
25 1
Manually operated hydraulic pump MP 16 cpl. with
air motor 3173000
26 2 Spring washer DIN 127-A12 galv 703515
27 2 Hexagon bolt ISO 4017-M12x70 700054
28 1 Lever rod cpl. GHL 3623030
29 1 Pump rod D 26.9 x 900 3320900
30 1 Support plate X 3325910
31 1 Guide bushing Ø 80 111598
32 1 O-ring 88 x 3 NBR 116826
33 1 Rod seal 80 x 88 x 11.5 708014
34 1 Guide ring 80x85x9.7 112015
35 1 Wiper ring 80 x 88 x 7 707911
36 1 Control f. operating side 1 3662002
37 1 Control box 124815
38 1 O-ring 12x2 707609
39 2 Countersunk screw ISO 10642-M8x75 701731
40 2 Locking screw DIN 908-R1/8” galv 705517
41 2 Ermeto screw fitting GE08LLRKEG(1/8) galv 752015
42 2 Sleeve VSH 8x1 706591
43 1 Axis 9 S 20 / RD 10 / DIN 668 3662026
44 2 Retaining ring DIN 471-10x1 galv 704003
45 1 Flap load stroke 3662020
46 1 Flap quick stroke 3662025
47 1 Roller carrier compl. 124670
48 8 Washer ISO 7089-13 galv 703413
49 4 Hexagon bolt ISO 4014-M12x70 700435
50 4 Compression spring no.246 124684
51 4 Hex nut ISO 7042-M12 galv 703309
52 0,28 Plastic tube 8x1 757001
53 0,25 Plastic tube 8x1 757001
54 1 Sheet metal cover welded 124680
55 2 Hexagon bolt ISO 4014-M8x40 700412
56 1 Sealing ring Cu R 1/8" 706801
57 1 Cylinder screw ISO 4762-M10x10 7008340
17
28
38
14
15
39

Related product manuals