EasyManua.ls Logo

Blue Diamond Post Driver - Page 20

Default Icon
34 pages
Print Icon
To Next Page IconTo Next Page
To Next Page IconTo Next Page
To Previous Page IconTo Previous Page
To Previous Page IconTo Previous Page
Loading...
20
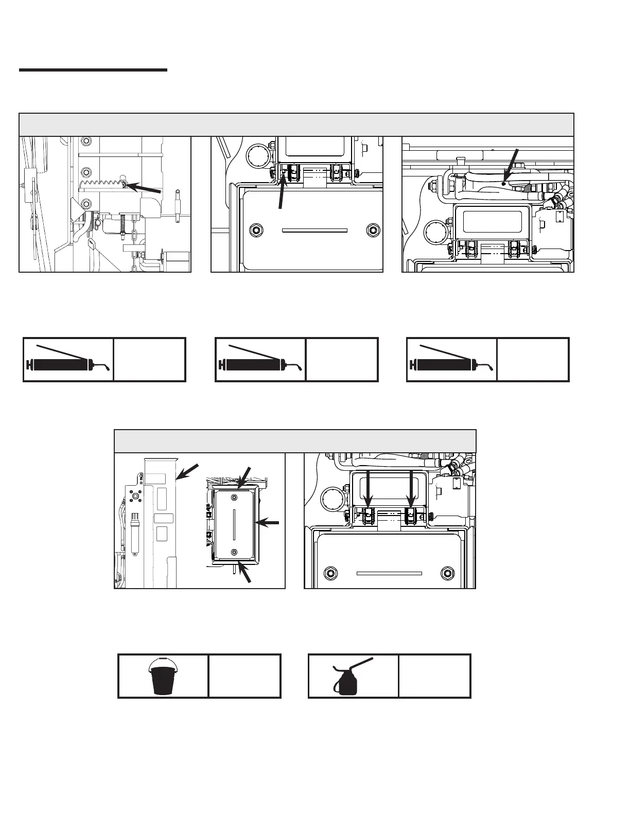
Maintenance &
Lubrication
(continued)
Every
40
Hours
Drive Channel - 3 Channel Sides
Lubricate drive channel with
multi-purpose grease
Drive Chain - 2 Chains
Lubricate drive chain with commercial
grade chain lubricant
Tilt Pivot Boss (Tilt only) - 1 Zerk
Add multi-purpose grease until
grease emerges
Every
10
Hours
Lubrication Points
Channel
Drive Chain Bearing - 1 Zerk
Add multi-purpose grease until
grease emerges
Chain Sprocket Shaft - 1 Zerk
Add multi-purpose grease until
grease emerges
Every
10
Hours
Lubrication Points
Every
10
Hours
Every
40
Hours