EasyManua.ls Logo

Blueair BAPT1 - Inner Cabinet & Duct Part

Blueair BAPT1
15 pages
Print Icon
To Next Page IconTo Next Page
To Next Page IconTo Next Page
To Previous Page IconTo Previous Page
To Previous Page IconTo Previous Page
Loading...
BAPT1 BAPT2 BAPT3 BAUR1 BAUR2 BAUR3 BAUF1 BAUF2 BAUF3
1 N/A N/A 1 N/A N/A 1 N/A N/A
N/A 1 N/A N/A 1 N/A N/A N/A N/A
N/A N/A 1 N/A N/A 1 N/A N/A N/A
N/A N/A N/A N/A N/A N/A N/A 1 N/A
N/A N/A N/A N/A N/A N/A N/A N/A 1
2 N/A 2 2 N/A 2 2 N/A 2
N/A 4 4 N/A 4 4 N/A 4 4
3
481248124812
4
8 16 24 8 16 24 8 16 24
N/A 1 N/A N/A N/A N/A N/A N/A N/A
N/A N/A 1 N/A N/A N/A N/A N/A N/A
1 N/A N/A 1 N/A N/A 1 N/A N/A
N/A 1 N/A N/A 1 N/A N/A 1 N/A
N/A N/A 1 N/A N/A 1 N/A N/A 1
1 N/A N/A N/A N/A N/A N/A N/A N/A
N/A 1 N/A N/A N/A N/A N/A N/A N/A
N/A N/A 1 N/A N/A N/A N/A N/A N/A
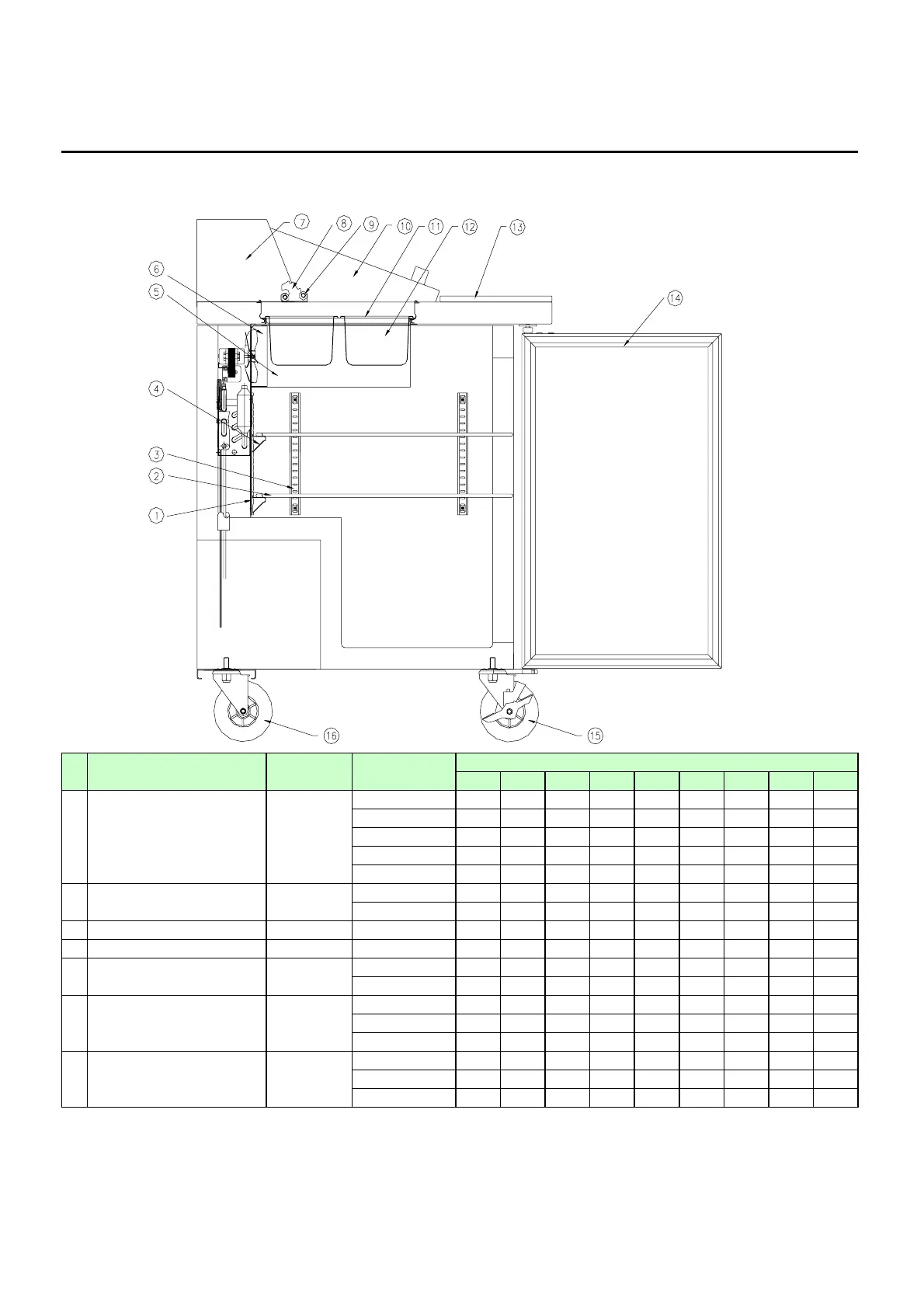
SHELF CLIP STS304
F0121C040
2
SHELF
F0156C010
F0156C020
SWRM-B
(+PE Coating)
F0117C030
F0117C040
F0117C050
F0117C010
F0117C020
No Part Name Description Part Number
4. INNER CABINET & DUCT PART
4-1. INNER CABINET PART
PART LIST
5
DUCT VESSEL STS304
F0139C060
F0139C070
Quantity
1
DUCT STS304
F0146C010
SHELF PILASTER STS304
7
TOP COVER (BACK) STS430
F0112C300
F0112C310
F0112C400
6
LOUVER STS304
F0139C010
F0139C020
F0139C030

Related product manuals