EasyManua.ls Logo

BOB-CAT 912480 - Lower Wire Harness Exploded View

Default Icon
54 pages
Print Icon
To Next Page IconTo Next Page
To Next Page IconTo Next Page
To Previous Page IconTo Previous Page
To Previous Page IconTo Previous Page
Loading...
34
QUICKCAT
MOWERS
®
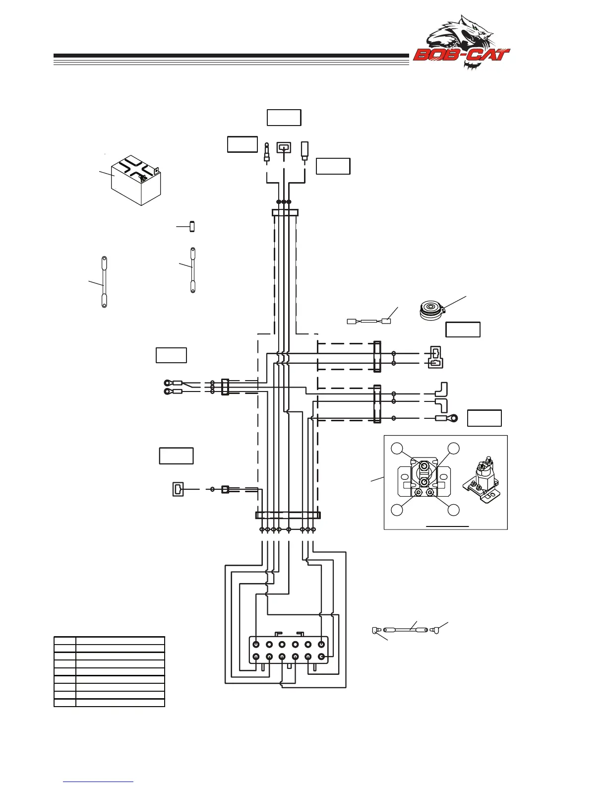
FIGURE 7
LOWER WIRE HARNESS
B
R RED
BLACK
COLOR
BL
WB
BLUE
WHITE W/ BLACK STRIPE
WIRE
BL
B
YB
B
B
P
RW
ENGINE
GROUND
CLUTCH
STARTER
SOLENOID
ENGINE
CHARGING
ENGINE
KILL
WB
G GREEN
PURPLEP
RW RED W/ WHITE STRIPE
STARTER
SOLENOID
R
OIL
PRESSURE
G
YB
R
RW
P
WB
B
G
BL
B
B
YELLOW W/ BLACK STRIPEYB
CARB.
SOLENOID
5
2
3 4
1 2
SOLENOID
3
(BLACK)
7
(GROUND)
ENGINE BLOCK
BATTERY
(RED)
9
SOLENOID
BATTERY
8
5
TO SOLENOID (2)
(RED)
10
4
10
3 & 4
1

Related product manuals