EasyManua.ls Logo

Borri INGENIO PLUS - Page 80

Borri INGENIO PLUS
203 pages
Print Icon
To Next Page IconTo Next Page
To Next Page IconTo Next Page
To Previous Page IconTo Previous Page
To Previous Page IconTo Previous Page
Loading...
Installation and start-up of INGENIO PLUS UPS 30÷40 kVA
Installazione e avviamento INGENIO PLUS UPS 30÷40 kVA
OMS02082 REV. D
63
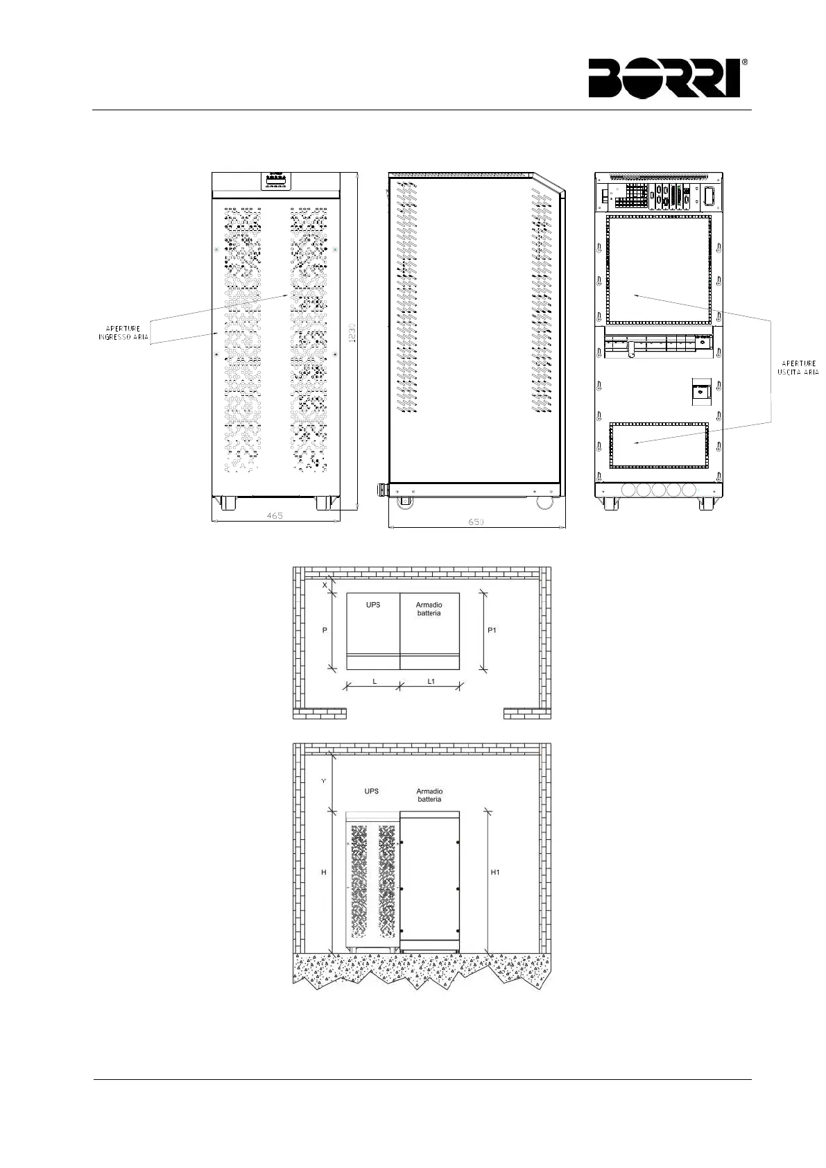
3.3.2 Dimensioni di ingombro, distanze minime dalle pareti e ventilazione
Figura 4 – Dimensioni di ingombro
Figura 5 – Distanze di rispetto

Related product manuals