EasyManua.ls Logo

Bosch BC2680RA - Dimensions

Bosch BC2680RA
22 pages
Print Icon
To Next Page IconTo Next Page
To Next Page IconTo Next Page
To Previous Page IconTo Previous Page
To Previous Page IconTo Previous Page
Loading...
5
Installation Instructions
3.
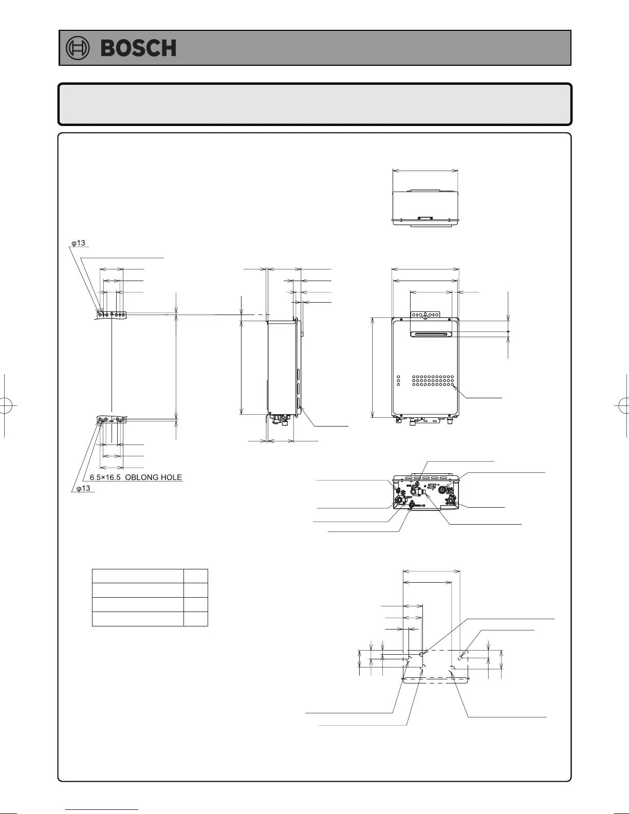
Dimensions
HEIGHT OF EACH FITTING
FROM BOTTOM OF CASE
CONDENSATE DRAIN
58
45
HOT WATER OUTLET
50
COLD WATER INLET
30
GAS INLET
1010
50
120
6
×
13 OBLONG HOLE
85
542
10
10
487 31
170
40
27
11
133
AIR INLET
60
120
90
WATER DRAIN VALVE
HOT WATER OUTLET
CONDENSATE DRAIN
WATER DRAIN VALVE
COLD WATER INLET
GAS INLET
WATER DRAIN VALVE
(WATER FILTER)
WIRING THROUGHWAY
AIR INLET
COLD WATER INLET
(
R3/4
)
HOT WATER OUTLET(R3/4)
350
334
217
5628
520
28
21
45
87
97
30
96
102
252
40
296
(VIEW FROM TOP)
GAS INLET(R3/4)
WIRING THROUGHWAY
CONDENSATE DRAIN(R1/2
)
338
<Unit : mm>

Related product manuals