EasyManua.ls Logo

Bosch FS 100 - System 30: Heatronic Internal Wiring and Settings

Bosch FS 100
76 pages
Print Icon
To Next Page IconTo Next Page
To Next Page IconTo Next Page
To Previous Page IconTo Previous Page
To Previous Page IconTo Previous Page
Loading...
Applications Manual Bosch Greenstar | 65
Bosch Thermotechnology Corp.
Data subject to change
System # 30
reset
eco
1
2
34
5
6
max
1
2
34
e
6
max
Boiler
Heating
Dial
1
2
3
Typical supply
temperatures
approx. 95 °F (35 °C)
approx. 109 °F (43 °C)
approx. 122 °F (50 °C)
4
5
6
approx. 140 °F (60 °C)
approx. 153 °F (67 °C)
approx. 167 °F (75 °C)
max Approx. 194 °F (90°C)
Application
Frost protection
Radiant floor heating
Panel radiator system
Cast Iron radiator system
Baseboard & convector system
Heatronic Settings:
Low Voltage
Ź Wire BUS terminal of the Bosch Control to
Terminal BB of Greenstar boiler Heatronic control
Wiring:
Line Voltage
Ź Wire Main power supply (120 v) to White molex
of Boiler external junction box
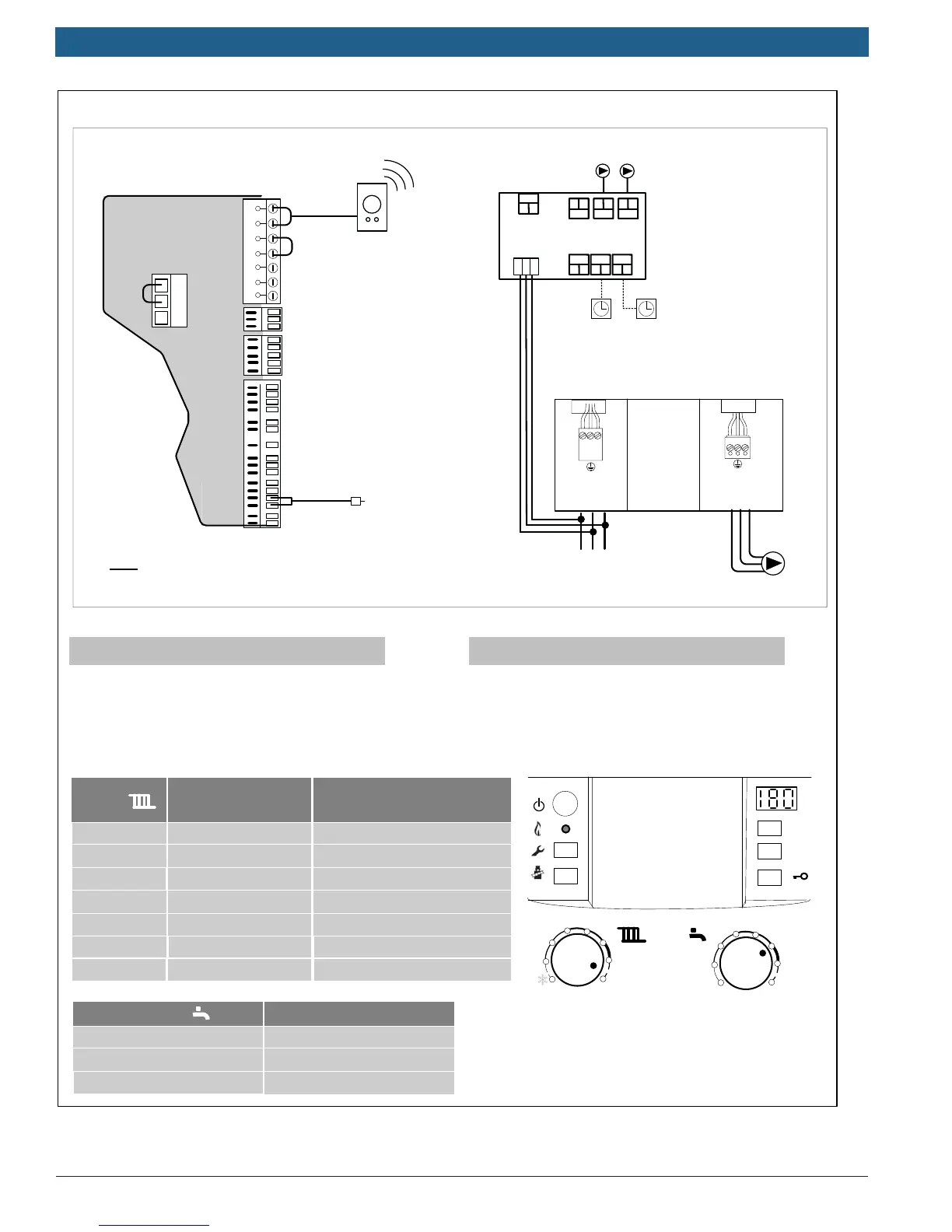
Heatronic Internal Wiring
B
B
4
2
1
A
F
9
7
8
LWCO
Supply Sensor
DHW Sensor
Dry contacts
Bosch Controls
Outdoor
Sensor
Supply Sensor
( end switch )
TTTTTT
Zone 3
Zone 1
Zone 2
Zone 3
Zone 1
Zone 2
L
NG
X
X
External Boiler Junction box
120 Vac Supply
120 Vac
Power
Ź Wire 120 Vac power supply to zone relay
L
N
black
ch pump
for unmixed heating
(Not Used)
L
N
white
mains
120v/60 hz
Note: For Low Water Cutoff Wiring see
Appendix D of this manual
DHW thermostat
min
e
max
Typical DHW temperatures
approx. 59 °F (15 °C)
approx. 131 °F (55 °C)
approx. 158 °F (70 °C)
“Coldest Zone”
Circulator
Bosch
Control
Ź Wire “coldest zone” circulator to Black molex of
Greenstar boiler external junction box

Related product manuals