EasyManua.ls Logo

Bosch WH17 - Dimensions

Bosch WH17
80 pages
Print Icon
To Next Page IconTo Next Page
To Next Page IconTo Next Page
To Previous Page IconTo Previous Page
To Previous Page IconTo Previous Page
Loading...
Informations relatives au chauffe-eau | 59US
6 720 646 951 (2011/09)Copyright
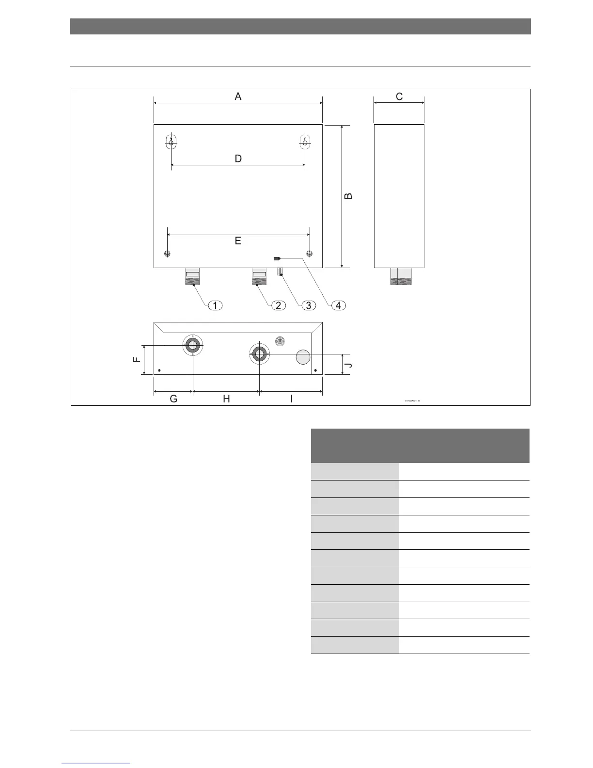
2.6 Dimensions
Fig. 2
1 Sortie ¾
"
NPT (eau chaude)
2 Entrée ¾
"
NPT (eau froide)
3 Bouton de température
4 LED
Dimensions
(pouces) WH17 / WH27
A (Largeur) 15 ¼ "
B (Hauteur) 12 ½ "
C (Profondeur) 4 ½ "
D 12
5
/
8
"
E 12
5
/
8
"
F 2 ½ "
G 3 ½ "
H 6
1
/
8
"
I 5 ¾ "
J 1 ¾ "
Raccords d’eau ¾ "
Tab. 4 Dimensions

Table of Contents

Other manuals for Bosch WH17

Related product manuals