EasyManua.ls Logo

B+S TF Series - Page 7

Default Icon
20 pages
Print Icon
To Next Page IconTo Next Page
To Next Page IconTo Next Page
To Previous Page IconTo Previous Page
To Previous Page IconTo Previous Page
Loading...
TF and RF Series B&S Commercial Kitchens
7
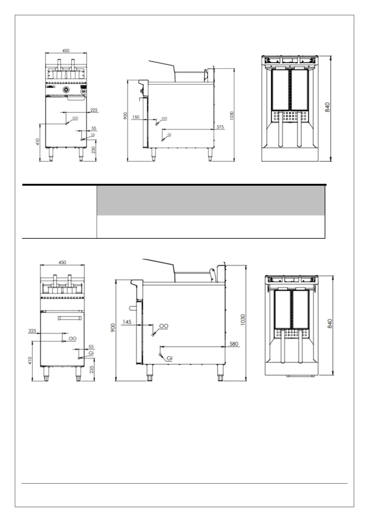
FIGURE 1: PLUMBING CONNECTIONS-K PLUS TF-451
TABLE 3: PLUMBING CONNECTIONS
Connection
Position from
Floor
(mm)
Position from Rear
of Appliance (mm)
Position from
LHS/RHS edge of
Appliance (mm)
Gas Inlet (GI)
¾” male BSP
230 (+/-5)
575(+/-5)
57 (+/-5) RHS
Oil drain valve
1 ¼Ball valve
410(+/-5)
640(+/-5)
225(+/-5) RHS
FIGURE 2: PLUMBING CONNECTIONS: VERRO TF-451/BLACK TF 451

Related product manuals