EasyManua.ls Logo

B+S TF Series - Page 8

Default Icon
20 pages
Print Icon
To Next Page IconTo Next Page
To Next Page IconTo Next Page
To Previous Page IconTo Previous Page
To Previous Page IconTo Previous Page
Loading...
TF and RF Series B&S Commercial Kitchens
8
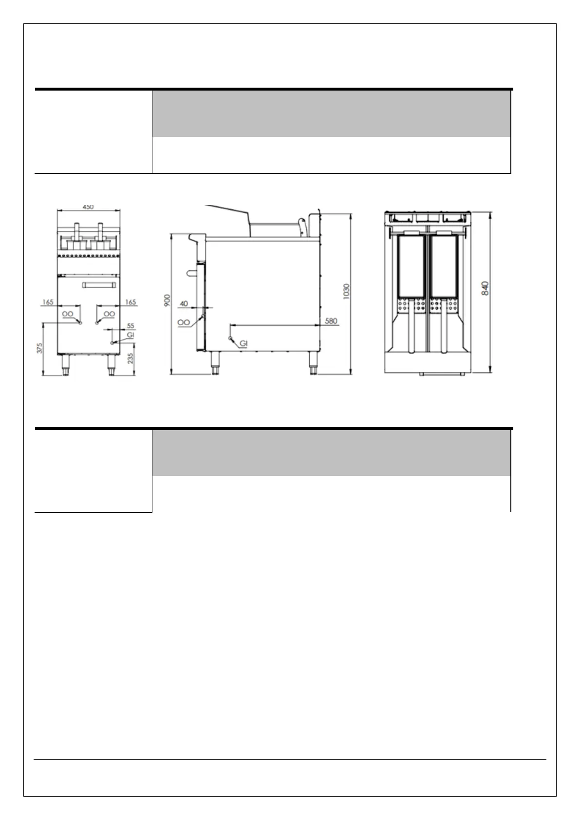
TABLE 4: PLUMBING CONNECTIONS
Connection
Position from
Floor
(mm)
Position from Rear
of Appliance (mm)
Position from
LHS/RHS edge of
Appliance (mm)
Gas Inlet (GI)
¾” male BSP
235 (+/-5)
580(+/-5)
55 (+/-5) RHS
Oil drain valve(OO)
1 ¼Ball valve
410(+/-5)
620(+/-5)
225(+/-5) RHS
FIGURE 3: PLUMBING CONNECTIONS: VERRO TF-451S
TABLE 5: PLUMBING CONNECTIONS
Connection
Position from
Floor
(mm)
Position from Rear
of Appliance (mm)
Position from
LHS/RHS edge of
Appliance (mm)
Gas Inlet (GI)
¾” male BSP
235 (+/-5)
580(+/-5)
60 (+/-5) RHS
Oil drain valve(OO)
Oil drain valve(OO)
1 ¼Ball valve
1 ¼Ball valve
375(+/-5)
375(+/-5)
540(+/-5)
540(+/-5)
165(+/-5) RHS
165(+/-5) LHS
VTF 451s is the Verro 450 wide split tank fryer (single pan split into two). It is 39 MJ/h (NG) and 38 MJ/h (LPG) per
half section of the pan.
KTF 451s is the K plus 450 wide split tank fryer (single pan split into two). It is 39 MJ/h (NG) and 38 MJ/h (LPG) per
half section of the pan.

Related product manuals