EasyManua.ls Logo

Braun L917 - Lift Positioning

Braun L917
95 pages
Print Icon
To Next Page IconTo Next Page
To Next Page IconTo Next Page
To Previous Page IconTo Previous Page
To Previous Page IconTo Previous Page
Loading...
Page 10
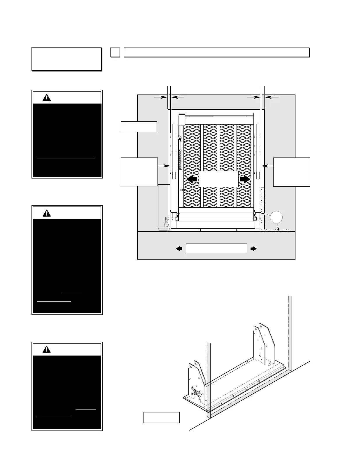
90°
1
Center lift in
door opening.
The lift towers (upright supports) and the vertical arms
must be parallel (aligned) with the vertical sides of the door
jamb and should be perpendicular (90˚) to the vehicle floor.
Lift Installation Instructions
Vertical Arm
must clear
door opening.
Vertical Arm
must clear
door opening.
Side to Side Alignment
Figure C
Lift Positioning
Figure D
Position base
plate parallel
(aligned) with
side of vehicle
(door sill or
stepwell).
DOOR OPENING
Align Base Plate with Door Opening
With the unit remaining in the fully
folded position, carefully place
the lift in the vehicle (use hoist or
crane).
Note: Read all Pre-
Installation Notes prior
to installation.
Plastic straps secure the lift in the
stowed position during shipment.
Before removing the shipping
straps, install the lift and power
the platform to the fully folded
position (press IN switch).
When positioning the
lift:
• lift must remain
folded (vertical)
• minimum three
people required if
hoist is unavailable
Failure to follow
these rules may
result in serious
bodily injury and/or
property damage.
W
A
RNING
W
A
RNING
Install lift and power
platform to fully
folded position before
removing shipping
straps. Failure to do
so may result in
serious bodily injury
and/or property
damage.
Do not fold or unfold
the platform prior to
positive securement
of base plate mount-
ing hardware. Failure
to follow this rule
may result in serious
bodily injury and/or
property damage.
W
A
RNING

Table of Contents