EasyManua.ls Logo

BRIG Eagle 6 - Wiring Diagram and Component Descriptions

BRIG Eagle 6
36 pages
Print Icon
To Next Page IconTo Next Page
To Next Page IconTo Next Page
To Previous Page IconTo Previous Page
To Previous Page IconTo Previous Page
Loading...
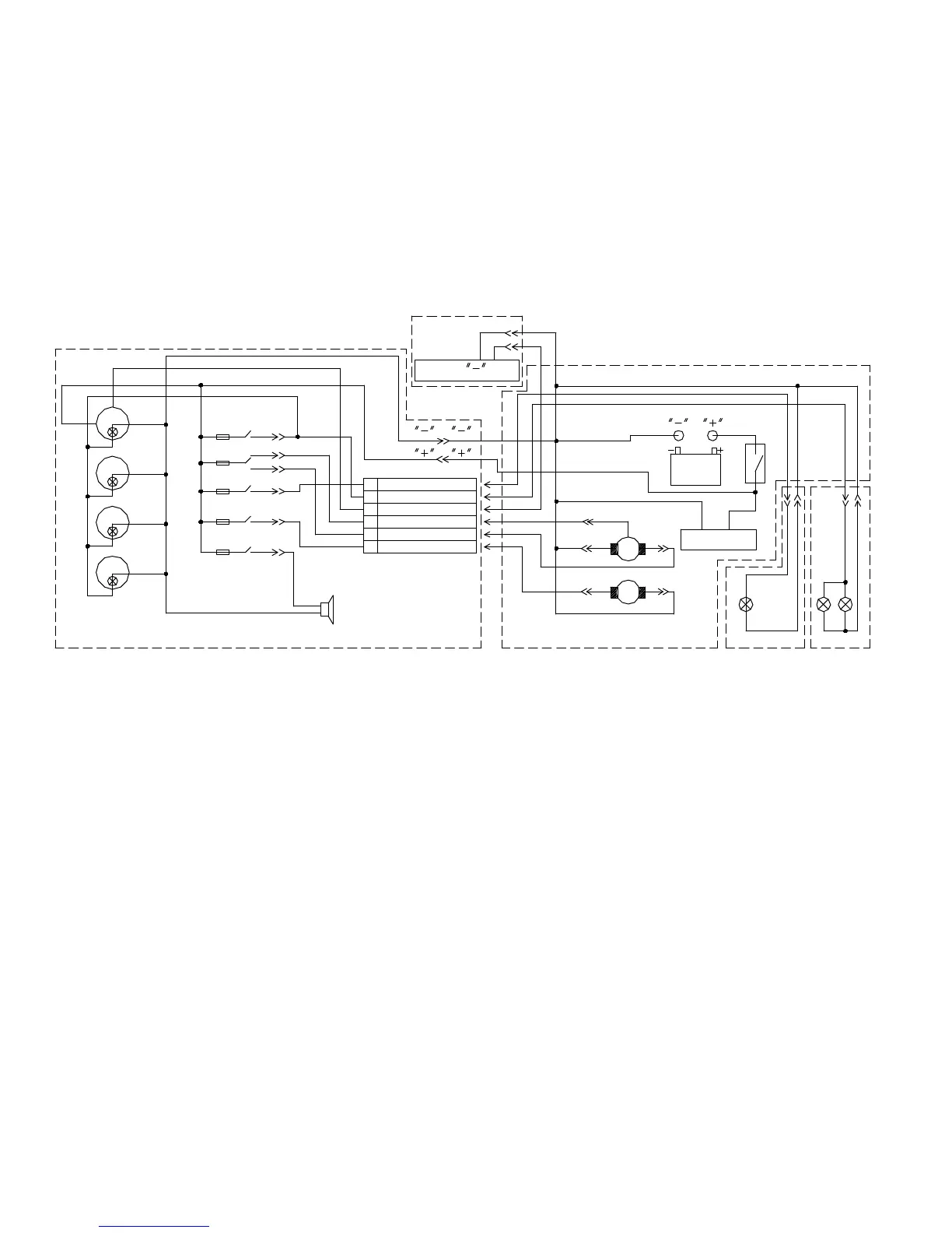
2018 — 24 — "BRIG" inflatable boats
STEERING CONSOLE STERN COMPARTMENT
MAST WITH ANCHOR LIGHT
FUEL TANK
10
4
1
7
6
9
11
14
15
12
13
19
16
17
2
3
D10
Anchor light
Running lights
Fuel level gauge
Bilge pump "Forced"
Bilge pump "Auto"
Shower pump
1
2
3
4
5
1
2
3
4
5
5A
10A
10A
5A
12V
8
lWIRING DIAGRAM.
10A
18
6
5
1 Battery (is not included to the complete set).
2 Battery disconnector.
3 Outboard motor (is not included to the complete set).
4 Bilge pump.
5 Shower pump.
6 Anchor light (white).
7 Port light (red).
8 Starboard light (green).
9 Electric horn.
10 Fuel level gauge.
11 Fuel level meter
12 Tachometer.
13 Compass.
14 Speedometer.
15 Switch with automatic circuit breaker — meter lamp and
running lights switch.
16 Switch with automatic circuit breaker — bilge pump
"FORCED" / "AUTO"
17 Switch with automatic circuit breaker — anchor light (white).
18 Switch with automatic circuit breaker — shower pump.
19 Switch with automatic circuit breaker — electric horn.
DESCRIPTION
BOW STEP-PLATE
WITH NAVIGATION
LIGHTS

Related product manuals