EasyManua.ls Logo

Broan SPE136SS - Page 13

Broan SPE136SS
50 pages
Print Icon
To Next Page IconTo Next Page
To Next Page IconTo Next Page
To Previous Page IconTo Previous Page
To Previous Page IconTo Previous Page
Loading...
INSTALLATION MANUAL
INSTALLATION
13
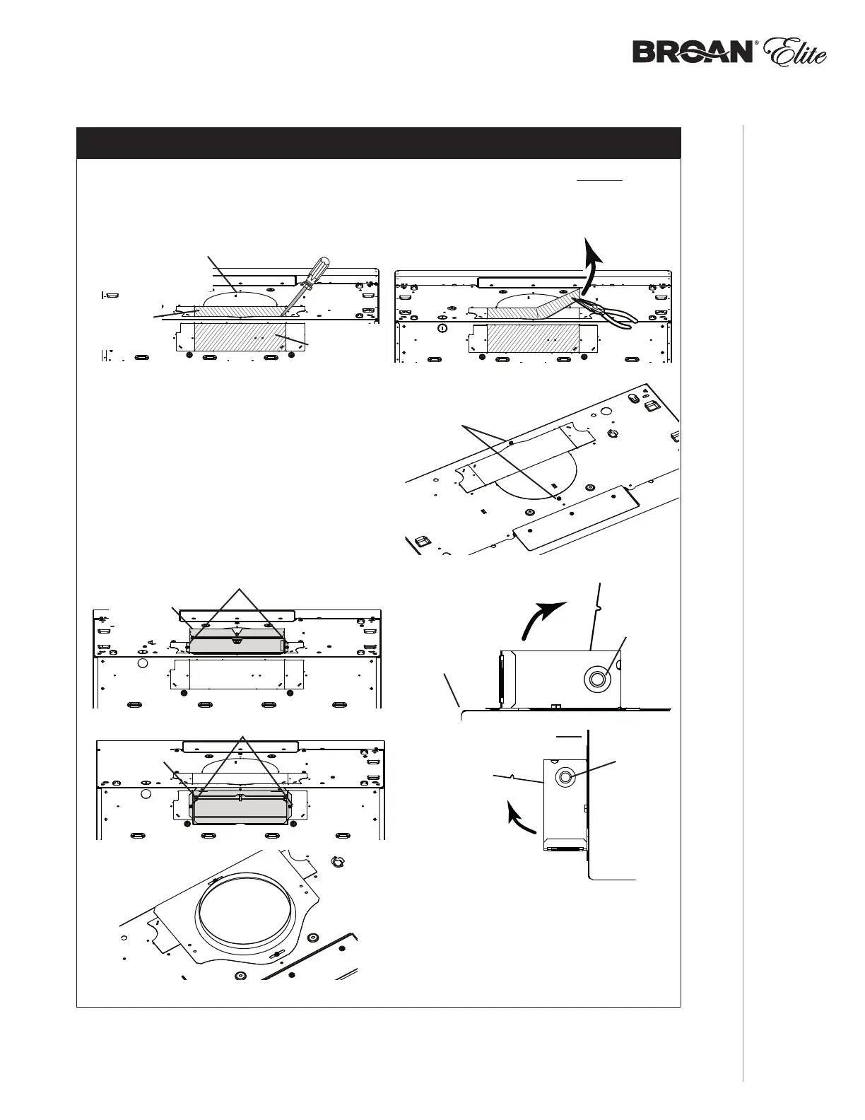
3¼” x 10” OR 7” ROUND DUCTED INSTALLATION ONLY
TIP: Insert a small length of duct over the 3¼” x 10” damper assembly (for rectangular ducting) or
7” round (for round ducting) and seal the joint using aluminum foil duct tape to ease connection
with the house ductwork.
12 ] Remove 3¼” x 10” vertical, 3¼” x 10” horizontal (both are the rectangular central
knockout plates, see hatched areas) or 7-inch round knockout plate as appropriate for
your ducting method (see FIGURES 1 A and 1 B).
NOTE: To accommodate off-center
ductwork, the 7” round duct plate
can be installed up to 1/2” on
either side of the hood center.
7” ROUND KNOCKOUT
PLATE (ALSO REMOVE
3¼” X 10VERTICAL
KNOCKOUT PLATE)
3¼” X 10
VERTICAL
KNOCKOUT
PLATE
3¼” X 10
HORIZONTAL
KNOCKOUT
PLATE
FIGURE 1 A
13 ] Using the screws located on top of the
hood (FIGURE 2), attach the 3¼” x 10”
Damper Assembly on top OR back of hood
(if using 3¼” x 10” duct; shaded part in
FIGURE 3 A below) or 7” Round Duct Plate
(if using 7-inch round duct, FIGURE 4) over
the knockout opening. When installed, the
3¼”x 10” damper assembly must open as
shown in FIGURE 3 B.
FIGURE 1 B
3¼” X 10
DAMPER
ASSEMBLY
TOP/BACK
EDGE OF
HOOD
DAMPER
FLAP
PIVOT
SCREWS
FIGURE 3 A FIGURE 3 B
3¼” X 10
DAMPER
ASSEMBLY
BACK OF
HOOD
DAMPER
FLAP
PIVOT
SCREWS
SCREWS
FIGURE 2
FIGURE 4

Related product manuals