EasyManua.ls Logo

BRP Evinrude E-Tec E115DPXSUC - Emergency Stop Switch Test; Tachometer Circuit Tests

BRP Evinrude E-Tec E115DPXSUC
443 pages
Print Icon
To Next Page IconTo Next Page
To Next Page IconTo Next Page
To Previous Page IconTo Previous Page
To Previous Page IconTo Previous Page
Loading...
149
ELECTRICAL AND IGNITION
TACHOMETER CIRCUIT TESTS
6
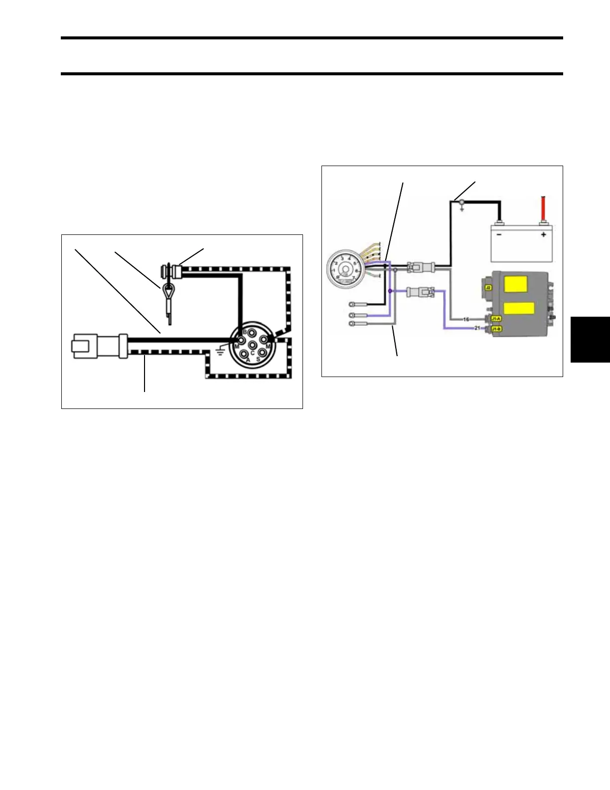
Emergency Stop Switch Test
This switch can be incorporated into the key
switch or installed as a separate switch. Either
style effectively connects the “M” terminals of the
key switch.
The emergency stop switch function grounds the
stop circuit wire (black/yellow) when the lanyard
clip is removed. One “M” terminal is the ground
wire (black) and one “M” terminal is the stop circuit
wire (black/yellow).
Install the clip on the emergency stop switch or
key switch. Start the outboard. Pull the clip from
the switch. The outboard must stop running.
TACHOMETER CIRCUIT
TESTS
Check voltage at the battery. Use this reading as a
reference for battery voltage.
STEP 1
Connect the red meter lead to the tachometer pur-
ple wire and the black meter lead to the tachome-
ter black wire (key ON, outboard NOT running).
If meter shows battery voltage, go to STEP 2.
If meter shows less than battery voltage, check
the purple, red/purple, and black wiring circuits,
fuse, key switch, and battery connections.
STEP 2
Disconnect gray and black wires at tachometer.
Set Fluke 29 Series II meter, or equivalent, to Hz
scale. Connect meter between gray wire and
black wire. With outboard running at 1000 RPM,
meter should indicate 90 to 105 Hz.
If meter reads 90 to 105 Hz, replace tachome-
ter.
If meter reads low or no signal, confirm output
on gray wire at pin 16 of EMM J1-A connector.
– Reading OK – Check condition of tachometer
circuit (gray wire). Repair as needed.
– Reading not OK – Check connection at EMM;
replace faulty EMM.
1. Lanyard and clip assembly
2. Emergency stop switch, separate from key switch
3. Stop circuit wire (black/yellow)
4. Ground wire (black)
000444
4 1 2
3
1. Purple lead
2. Black lead
3. Gray lead
004287
12
3

Table of Contents

Related product manuals