EasyManua.ls Logo

Brunton Transit - Reference Material

Brunton Transit
15 pages
Print Icon
To Next Page IconTo Next Page
To Next Page IconTo Next Page
To Previous Page IconTo Previous Page
To Previous Page IconTo Previous Page
Loading...
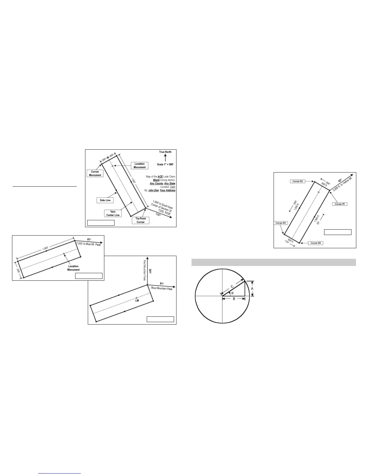
Mountain Peak by an azimuth of 81°, and a distance to Blue Mountain Peak of 7,000 feet from
a corner monument.
8.4.b Using Two Bearings
The claim in figure 31 is tied to two azimuth
readings from a corner monument. Using this
method, distance is not required, since the
intersection of both azimuth lines determine
the location.
8.4.c Using Five Bearings
A more complete description of your claim can
be determined by displaying the direction of
the sides of your claim. The angles are found
by standing on corner #1 and taking an
azimuth to corner #2. Then standing on corner
#2 and taking an azimuth to corner #3. Finally,
from #3 to #4 and from #4 back to #1, thus
completing the description.
A
to the South East corner of Section 32,
T22S, R22E was found to be 110°. (Fig
29, p. 20). Note, the distance to the sec-
tion corner must also be provided.
8.4 Location On Unsurveyed Land
Not all of the U.S. has been surveyed. As
of 1970, about 500,000,000 acres were
still unsurveyed. Most of the unsurveyed
land is located in mountainous sections of
the country. Since then, however, more
has been surveyed. Check with the
Federal Land office, or the U.S. Bureau of
Land Management of your state.
If your claim is located in one of the
unsurveyed areas (no corner post to
locate, or tie your claim), you must locate
your claim in reference to some natural
land mark. A natural land mark being a
mountain top, intersection of a river and a
stream, etc.
8.4.a Using Bearing & Distance
Figure 30 shows a claim tied to Blue
Figure 29
Figure 30
Figure 31
Figure 32
9 -- Reference Material
SIN(
θ
) = A/C CSC(
θ
) = C/A
COS(
θ
) = B/C SEC(
θ
) = C/B
TAN(
θ
) = A/B COT(
θ
) = B/A
A = side opposite angle
θ
B = side adjacent to angle
θ
C is the hypotenuse
C
2
= A
2
+ B
2
2019

Related product manuals