EasyManua.ls Logo

Bryant 313AAV - Page 24

Bryant 313AAV
54 pages
Print Icon
To Next Page IconTo Next Page
To Next Page IconTo Next Page
To Previous Page IconTo Previous Page
To Previous Page IconTo Previous Page
Loading...
24
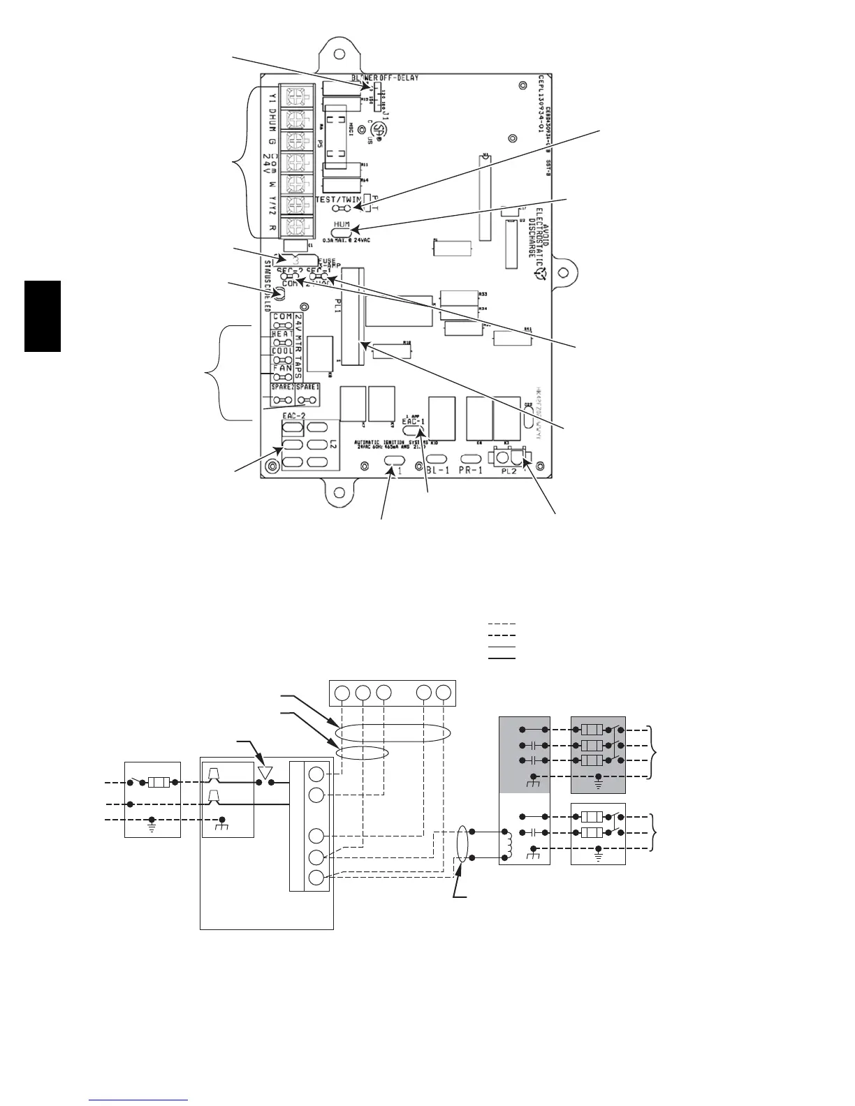
BLOWER OFF-DELAY
24-V THERMOSTAT
TERMINALS
3-AMP FUSE
LED OPERATION
& DIAGNOSTIC
LIGHT
BLOWER SPEED
SELECTION
TERMINALS
HEAT
FAN
COOL
SPARE 2
SPARE 1
115-VAC (L2)
NEUTRAL
CONNECTIONS
115-VAC (L1)
NEUTRAL
CONNECTIONS
EAC-1 TERMINAL
(115-VAC 1.0 AMP. MAX.)
PL2-HOT SURFACE
IGNITER & INDUCER
MOTOR CONNECTOR
PL1-LOW VOLTAGE
DRAIN HARNESS
CONNECTOR
TRANSFORMER
24-VAC CONNECTIONS
HUMIDIFIER TERMINAL
(24-VAC 0.5 AMP. MAX)
TWINNING AND/OR
COMPONENT TEST
TERMINAL
A08063
Fig. 24 -- Furnace Control
115-V FIELD-
SUPPLIED
DISCONNECT
AUXILIARY
J-BOX
24-V
TERMINAL
BLOCK
THREE-WIRE
HEATING-ONLY
FIVE WIRE
NOTE 1
NOTE 2
FIELD-SUPPLIED
DISCONNECT
CONDENSING
UNIT
TWO
WIRE
FURNACE
C
O
N
T
R
O
L
R
G
COM
WCR GY
GND
GND
FIELD 24-V WIRING
FIELD 115-, 208/230-, 460-V WIRING
FACTORY 24-V WIRING
FACTORY 115-V WIRING
208/230- OR
460-V
THREE
PHASE
208/230-V
SINGLE
PHASE
BLOWER DOOR SWITCH
WHT
BLK
WHT
BLK
NOTES: Connect Y-terminal in furnace as shown for proper blower operation.
Some thermostats require a "C" terminal connection as shown.
If any of the original wire, as supplied, must be replaced, use
same type or equivalent wire.
W
Y/Y2
GND
THERMOSTAT
TERMINALS
1.
2.
3.
A99440
Fig. 25 -- Heating and Cooling Application Wiring Diagram with 1--Stage Thermostat
313A

Related product manuals