EasyManua.ls Logo

Bryant 376CAV - Page 2

Bryant 376CAV
24 pages
Print Icon
To Next Page IconTo Next Page
To Next Page IconTo Next Page
To Previous Page IconTo Previous Page
To Previous Page IconTo Previous Page
Loading...
These instructions cover minimum requirements for a safe instal-
lation and conform to existing national standards and safety codes.
In some instances, these instructions exceed certain local codes
and ordinances, especially those that may not have kept pace with
changing residential construction practices. We require these
instructions as a minimum for a safe installation.
CAUTION: Application of this furnace should be in-
doors with special attention given to vent sizing and
material, gas input rate, air temperature rise, and unit
sizing. Improper installation or misapplication of the
furnace can require excessive servicing or cause prema-
ture component failure.
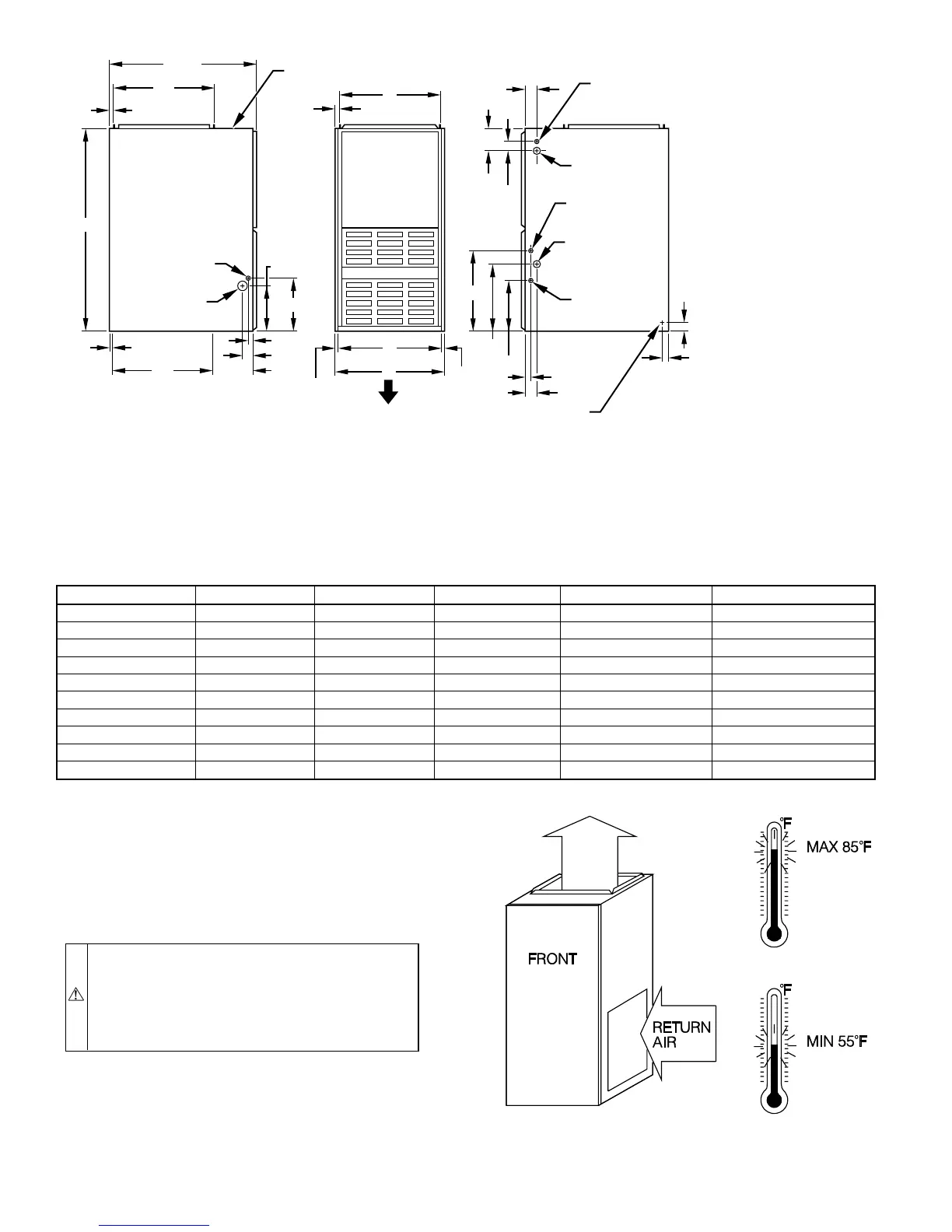
NOTE: These furnaces are designed for a minimum continuous
return-air temperature of 60°F or intermittent operation down to
55°F such as when used with a night setback thermostat. Return-air
temperature must not exceed a maximum of 85°F. Failure to
follow these return-air temperature limits may affect reliability of
heat exchangers, motors, and controls.
Fig. 1—Dimensional Drawing
TABLE 1—DIMENSIONS (IN.)
UNIT SIZE A D E VENT CONN SHIP. WT (LB)
024050 14-3/16 12-9/16 12-11/16 4 123
036050 14-3/16 12-9/16 12-11/16 4 128
024070 14-3/16 12-9/16 12-11/16 4 130
036070 14-3/16 12-9/16 12-11/16 4 139
036096 17-1/2 15-7/8 16 4 151
048096 17-1/2 15-7/8 16 4 153
048115 17-1/2 15-7/8 16 4 161
060115 21 19-3/8 19-1/2 4 177
066115 21 19-3/8 19-1/2 4 176
060135 24-1/2 22-7/8 23 5 193
A99288
4
3
16
2
2
15
16
13
16
11
16
9
1
8
10
1
4
1
1
16
2
1
8
8
1
4
10
1
4
1
1
16
2
1
8
16
1
16
13
5
16
19
11
16
13
16
11
16
20
28
1
2
39
7
8
D
5
8
TYP
1
TYP
E
A
AIRFLOW
OUTLET
INLET
1
2
DIA
THERMOSTAT
WIRE ENTRY
7
8
DIA
ACCESSORY
7
8
DIA
ACCESSORY
DIMPLES TO DRILL HOLES
FOR HANGER BOLTS (4 PLACES)
IN HORIZONTAL POSITION
ADDITIONAL
7
8
DIA K.O.s ARE
LOCATED IN THE TOP PLATE
AND BOTTOM PLATE
NOTE:
7
8
DIA HOLE
POWER ENTRY
1
1
2
DIA
R.H. GAS ENTRY
7
8
DIA
ACCESSORY
1
3
4
DIA HOLE
GAS ENTRY
VENT CONNECTION
Minimum return-air openings at furnace, based on metal duct. If flex duct is used,
see flex duct manufacturer's recommendations for equivalent diameters.
a. For 800 CFM16-in. round or 14
1
2 x 12-in. rectangle.
b. For 1200 CFM20-in. round or 14
1
2 x 19
1
2-in. rectangle.
c. For 1600 CFM22-in. round or 14
1
2 x 23
1
4-in. rectangle.
d. For airflow requirements above 1800 CFM, must use entire return air opening.
NOTE:
A93042
2

Other manuals for Bryant 376CAV

Related product manuals