EasyManua.ls Logo

Bryant 579F - Page 200

Bryant 579F
298 pages
Print Icon
To Next Page IconTo Next Page
To Next Page IconTo Next Page
To Previous Page IconTo Previous Page
To Previous Page IconTo Previous Page
Loading...
200
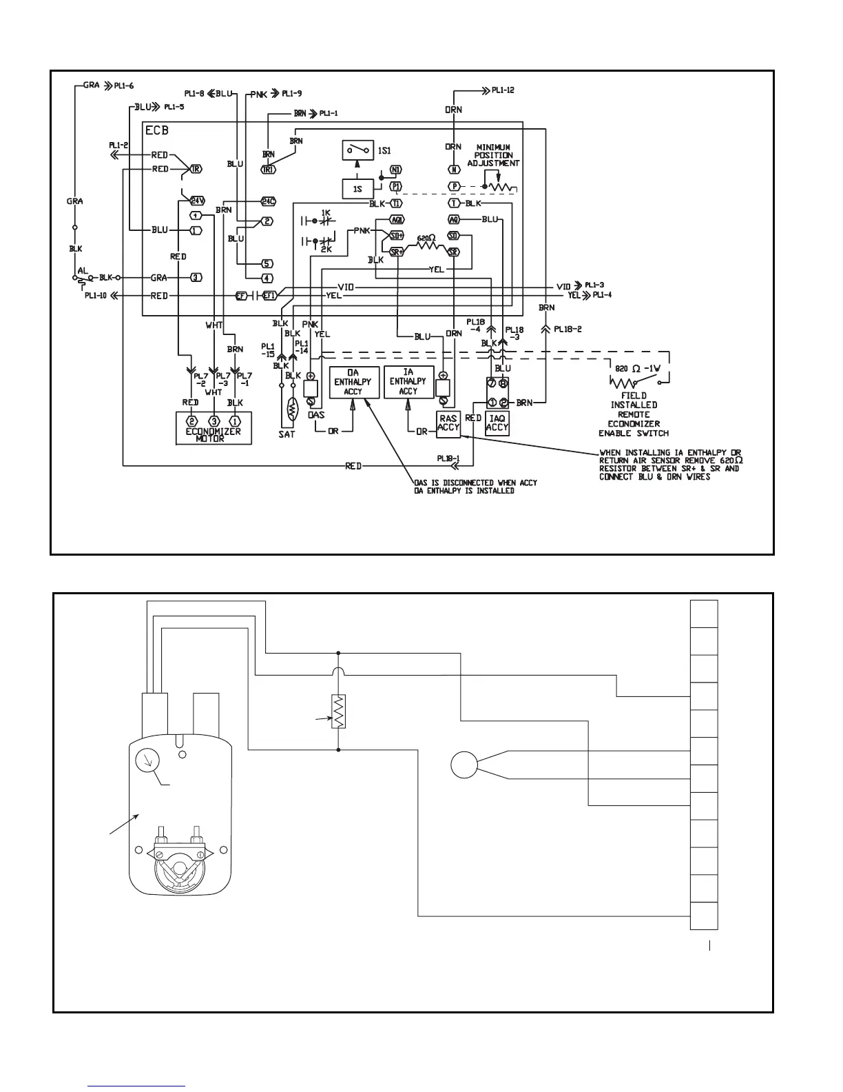
TYPICAL WIRING SCHEMATICS — 579F (cont)
4
3
5
2
8
6
7
1
10
11
9
12
PINK
BLACK
BLUE
NOTE 1
NOTE 2
RUN
500 OHM
RESISTOR
50HJ540573
ACTUATOR
ASSEMBLY
RED
WHITE
ECONOMISER2 PLUG
DIRECT DRIVE
ACTUATOR
OAT
EconoMi$er IV Wiring — 579F180-300 Units
EconoMi$er2 Wiring — 579F180-300 Units
LEGEND
OAT — Outdoor Air Temperature Sensor
NOTES:
1. Switch on actuator must be in run position for economizer to operate.
2. 50HJ540573 actuator consists of the 50HJ540567 actuator and a harness with 500-ohm resistor.
LEGEND
AL Ambient Limit OA Outdoor Air
ECB Economizer Control Board OAS Outdoor Air Sensor
IA Indoor Air RAS Return Air Sensor
IAQ Indoor Air Quality SAT Supply Air Temperature
a48-7877
a50-8058

Other manuals for Bryant 579F

Related product manuals