EasyManua.ls Logo

Bryant 801SA - SIDEWALL VENTING

Bryant 801SA
40 pages
Print Icon
To Next Page IconTo Next Page
To Next Page IconTo Next Page
To Previous Page IconTo Previous Page
To Previous Page IconTo Previous Page
Loading...
800SA/801SA: Installation, Start–Up, Operating and Service and Maintenance Instructions
Manufacturer reserves the right to change, at any time, specifications and designs without notice and without obligations.
23
An accessory Vent Guard Kit is REQUIRED for downflow applications
where the vent exits through the lower portion of the furnace casing. See
Fig. 34 and Product Data Sheet for accessory listing. Refer to the Vent
Guard Kit Instructions for complete details.
The horizontal portion of the venting system shall slope upwards not less
than 1/4-in. per linear ft. (21 mm/M) from the furnace to the vent and
shall be rigidly supported every 5 ft. (2 M) or less with metal hangers or
straps to ensure there is no movement after installation.
SIDEWALL VENTING
This furnace is not approved for direct sidewall horizontal venting.
Per section 12.4.3 of the current edition of NFPA54/ANSI Z223.1, any
listed mechanical venter may be used, when approved by the authority
having jurisdiction.
Select the listed mechanical venter to match the Btuh input of the
furnace being vented. Follow all manufacturer’s installation
requirements for venting and termination included with the listed
mechanical venter.
Caution!! For the following applications, use the minimum vertical vent heights as specified below.
For all other applications, follow exclusively the National Fuel Gas Code.
NOTE: All vent configurations must also meet National Fuel Gas Code venting requirements NFGC
*4 in. (102 mm) inside casing or vent guard
**Including 4 in. (102 mm) vent section(s)
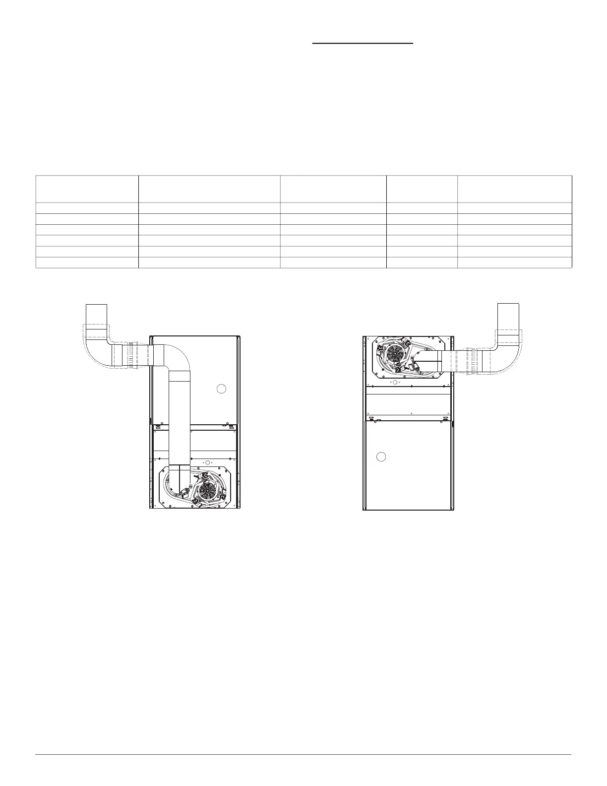
A03210
Fig. 31 – Downflow Application-Vent Elbow Up then Left
A03209
Fig. 32 – Upflow Application-Vent Elbow Right
FURNACE
ORIENTATION VENT ORIENTATION
FURNACE INPUT
(BTUH/HR)
MIN. VENT
DIAMETER
IN. (mm)*
MIN. VERTICAL VENT HEIGHT
FT. (M)**
Downflow Vent elbow left, then up Fig. 34 154,000 132,000 110,000 5 (127) 12 (3.6)
Horizontal Left Vent elbow right, then up Fig. 43 154,000 132,000 5 (127) 7 (2.1)
Horizontal Left Vent Elbow up Fig. 41 154,000 132,000 5 (127) 7 (2.1)
Horizontal Left Vent elbow right Fig. 40 154,000 5 (127) 7 (2.1)
Downflow Vent elbow up then left Fig. 31 110,000 5 (127) 10 (3.0)
Downflow Vent elbow up, then right Fig. 37 110,000 5 (127) 10 (3.0)
SEE NOTES:1,2,3,4,5,7,8,9
on the page following
these figures
SEE NOTES: 1,2,3,4,7,8,9
on the pages following
these figures

Related product manuals