EasyManua.ls Logo

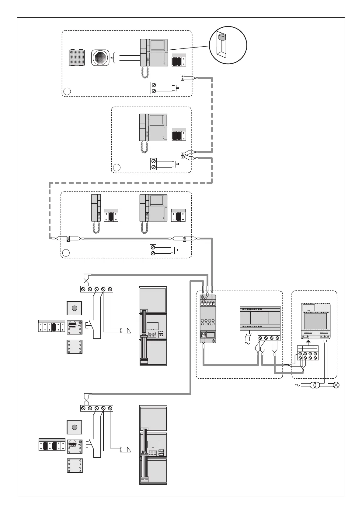
Bticino 346830 - Multi-Unit System Layout; Connecting Multiple Indoor Units

Bticino 346830
3 pages
Print Icon
To Next Page IconTo Next Page
To Next Page IconTo Next Page
To Previous Page IconTo Previous Page
To Previous Page IconTo Previous Page
Loading...
2
344102
344032
334022
BUS PL S+ S-
NP
8
5
1
OFF
ON
1
336992
336993
336994
336910
344102
342510
342170
342240
BUS PL S+ S-
342510
342170
342240
NP
21
344102
18
12
1
PE 0
PE 1
NP
1
NP
1
P
1
NTS
1
P
1
NTS
Spostare su ON solo nell’ultimo
videocitofono del montante.
Das letzte Video-Haustelefon der
Steigleitung auf ON schalten.
Placer sur ON (MARCHE) du
dernier vidéophone de la ligne
montante.
Move to ON on the last video door
entry unit of the riser.
Lleve ON al último videointerfono
del montante.
Stel de laatste huistelefoon van de
opgaande lijn in op ON.
Coloque em ON no último vídeo
intercomunicador do montante.
Metatopìste sto ON sto
teleytaìo binteouyrothléfvno
toy oruostàth
PS
BUS
TK
BUS
PI
2
1
4
3
6
5
8
7
BUSBUS
346830
346200
346000
BUS 2
1
NC
NO
C
230V
BUS
BUS
230Va.c.
Retrouvez tous les produits du fabricant Bticino sur notre site internet www.confort-electrique.fr
Téléchargé sur www.confort-electrique.fr
Téléchargé sur www.confort-electrique.fr

Related product manuals