EasyManua.ls Logo

Buderus MP100 EMS plus - Page 83

Buderus MP100 EMS plus
84 pages
Go to English
Print Icon
To Next Page IconTo Next Page
To Next Page IconTo Next Page
To Previous Page IconTo Previous Page
To Previous Page IconTo Previous Page
Loading...
6 720 808 905 (2014/04)MP100
Anhang/Appendix/Annexes/Příloha/Tillæg/Παράρτημα/Liitteet/Bijlage/Appendice/Vedlegg/Załącznik/Príloha/Priloga/Bilaga/Ek
| 83
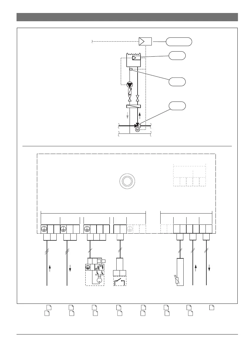
Fig. 16 de
5, en
10, fr
15, cs
20, da
25, el
30, fi
35, fl
40,
it
45, no
50, pl
55, sk
60, sl
65, sv
70, tr
75,
6 720 808 385-02.2O
BUS BUSTC1
MC1
12
M
VC1
N
M
N
4
43 44
230 V AC 230 V AC
NL N N43 N6344 15 16L
120/230VAC 120/230VAC
MC1VC1 PC1
1212 12
TC1
T0 BUS
MP100
12
BUS
120/230 V AC
≤ 24V
≤ 24V
12 2
OC1
31
MD1
0
1
2
3
4
5
6
7
8
9
10
Pool
TC1
MC1
VC1
MP100

Table of Contents

Related product manuals