EasyManua.ls Logo

Bunn JDF-2S - Page 28

Bunn JDF-2S
31 pages
Print Icon
To Next Page IconTo Next Page
To Next Page IconTo Next Page
To Previous Page IconTo Previous Page
To Previous Page IconTo Previous Page
Loading...
28
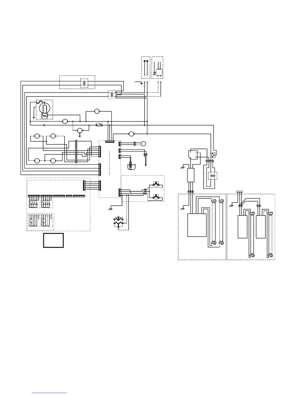
SCHEMATIC WIRING DIAGRAM JDF-2S
44744.2 030813
J6-1
J11-1
J11-5
J6-1
J6-5
J6-3
CONTROL
P
C
BOARD
J5-1
J5-4
J2-1
J2-6
GRN
WHI/ORN
LEFT
DISPENSE
RIGHT
DISPENSE
LEFT
DISPENSE
RIGHT
DISPENSE
YEL YEL
WHI/VIO
RECIR.
PUMP
BRN
WHI
BLK
J1-1
J1-5
WHI
J3-1
J3-2
WHI/BLK
ORN
WHI/VIO
WHI/ORN
VIO
RED
RED
WHI/RED
BLK
WHI RED/BLK
RED/BLK
YEL
WHI/BLU
BLU
BLK
RED
BLU
YEL
ORN
BLK
RED
BLU
YEL
ORN
RED
MOTOR
CONDENSOR FAN
RED/BLKBLU/BLK
BLU/BLK
J7-1
J7-2
J9-1
J9-2
PUMPPUMP
FAN
AUXILLARY
CONTROL BOARD
t
t
WHI/BLK
GRY
BLK
WHI
CABINET
THERMISTOR
WATER BATH
THERMISTOR
WHI WHI
WHI
BLK
38951.0001D 10/09 © 2006 BUNN-O-MATIC CORPORATION
BLU/BLK
1
BLK
BLK
BLK
WHI
GRN
1
BLK
REFRIGERATION
SWITCH
K1
1
12
WHI/VIO
WHI/VIO
VIOVIO
VIO
WHI/ORNWHI/ORN
YELYEL
REDRED
REDRED
ORNORN
ORN
SOL SOL
WATER INLET
VALVE
BRN WHI
SOL
BLK
TRANSFORMER
WHI
BLU
WHI/BLU
L
O
A
D
L
I
N
E
WHI
WHI/BLK
K1
120V
MODELS
N
A B
A B
A B
L1
WHI/GRN
BRN/WHI
A B
220-230V
MODELS
GRN/YEL
NL1GND
BRN
BLU
EMI
FILTER
120 VOLTS AC
or
220-230 VOLTS AC
2 WIRE
SINGLE PHASE
J1-1
J1-3
J5-1
J5-5
J4-1
J4-5
J3-1
J3-5
J2-1
J2-5
PUSH BUTTON OPTION
Models with Membrane Switches
Models with Mechanical Switches
STATIC
SHIELD
DISPENSE
STATION
#2
STOP/PLUS
LARGE
MEDIUM
SMALL
STATIC
SHIELD
DISPENSE
STATION
#1
DISPENSE
STATION
#2
DISPENSE
STATION
#1
STOP/PLUS
LARGE
MEDIUM
SMALL
DISPENSE
STATIC
SHIELD
DISPENSE
STATIC
SHIELD
GRN or YEL
RED
BLK
BLK
BLK
REDBLK
1
RIGHT
DISPENSE
SWITCH
GRNBLK
LEFT
DISPENSE
SWITCH
DISPENSE
LOCKOUT
SWITCH
14
BLK
TRANSFORMER
WHI
BLK
WHI
WHI
GRNGRN GRN
BLU or BRN
WHI
RED
GRN
WHI
BRN
WHI
BRN
BLK
RED
WHI
WHI
BLK
RED
WHI
WHI
BLK
BLK
BLU
BLU
BLU or BRN
WHI/GRN
WHI/BLK
WHI/GRN
WHI
WHI WHI
WHI WHI
WHI/BLK
LOAD
LINE
13
+
˜
µ
-
Chassis
Ground
RECTIFIER
DOOR
HARNESS
DOOR
(Single Ballast)
Models with Dual Dispense Option
13
DOOR
(Dual Ballast)
Chassis
Ground
Chassis
Ground
BALLAST
BALLAST
WHI
WHI
BALLAST
WHI
WHI
12 12
BLK
DISPENSE
LOCKOUT
SWITCH
BLK
TRANSFORMER
WHI
BLU
WHI/BLU
L
O
A
D
L
I
N
E
J12-1
J12-3
WHI/BLU
BLU
START
RUN
COMPRESSOR ASSY
LIMIT
THERM.
COMPRESSOR
MOTOR
3
PTC
ASSY
4
56
2
1
N
GRN/YEL-16
Chassis
Ground
(Models with Flourescent Lited Doors)

Other manuals for Bunn JDF-2S

Related product manuals