EasyManua.ls Logo

Bunn JDF-2S - JDF-2 S Wiring Diagram

Bunn JDF-2S
31 pages
Print Icon
To Next Page IconTo Next Page
To Next Page IconTo Next Page
To Previous Page IconTo Previous Page
To Previous Page IconTo Previous Page
Loading...
27
J6-1
J11-1
J11-5
J6-1
J6-5
J6-3
CONTROL
P
C
BOARD
J5-1
J5-4
J2-1
J2-6
GRN
WHI/ORN
LEFT
DISPENSE
RIGHT
DISPENSE
LEFT
DISPENSE
RIGHT
DISPENSE
YEL YEL
WHI/VIO
RECIR.
PUMP
BRN
WHI
BLK
J1-1
J1-5
WHI
J3-1
J3-2
WHI/BLK
ORN
WHI/VIO
WHI/ORN
VIO
RED
RED
RED
WHI/RED
BLK
WHI RED/BLK
RED/BLK
YEL
WHI/BLU
BLU
BLK
RED
BLU
YEL
YEL
BRN BRN
ORN
RED
MOTOR
CONDENSOR FAN
RED/BLKBLU/BLK
BLU/BLK
J7-1
J7-2
J9-1
J9-2
PUMPPUMP
FAN
AUXILLARY
CONTROL BOARD
t
t
WHI/BLK
GRY
BLK or ORN
WHI
CABINET
THERMISTOR
WATER BATH
THERMISTOR
WHI WHI
WHI
BLK
44745.0000A 03/11© 2011 BUNN-O-MATIC CORPORATION
BLU/BLK
1
BLK
BLK
BRN
YEL
YEL
WHI
WHI
BLK
BLK
WHI
GRN
1
BLK
REFRIGERATION
SWITCH
K1
1
12
WHI/VIO
WHI/VIO
VIOVIO
VIO
WHI/ORNWHI/ORN
YELYEL
REDRED
REDRED
ORNORN
ORN
SOL SOL
WATER INLET
VALVE
BRN WHI
SOL
BLK
TRANSFORMER
WHI
BLU
WHI/BLU
L
O
A
D
L
I
N
E
WHI
WHI/BLK
K1
120V
MODELS
N
A B
A B
A B
L1
WHI/GRN
BRN/WHI
A B
220-230V
MODELS
GRN/YEL
NL1GND
BRN
BLU
EMI
FILTER
120 VOLTS AC
or
220-230 VOLTS AC
2 WIRE
SINGLE PHASE
J1-1
J1-3
J5-1
J5-5
J4-1
J4-5
J3-1
J3-5
J2-1
J2-5
PUSH BUTTON OPTION
Models with Membrane Switches
Models with Mechanical Switches
Models with Lited Doors
STATIC
SHIELD
DISPENSE
STATION
#2
STOP/PLUS
LARGE
MEDIUM
SMALL
STATIC
SHIELD
DISPENSE
STATION
#1
DISPENSE
STATION
#2
DISPENSE
STATION
#1
STOP/PLUS
LARGE
MEDIUM
SMALL
DISPENSE
STATIC
SHIELD
DISPENSE
STATIC
SHIELD
GRN or YEL
RED
BLK
BLK
BLK
RED
RED
RED
BLK
BLK
RED
RED
BLK
BLK
BLK
1
RIGHT
DISPENSE
SWITCH
GRN
GRNGRN
WHIWHI
BRNBRN
BLK
LEFT
DISPENSE
SWITCH
Models with Dual Dispense Option
BLK
BLK
DISPENSE
LOCKOUT
SWITCH
PROGRAM
SWITCH
BLK
TRANSFORMER
WHI
BLU
WHI/BLU
L
O
A
D
L
I
N
E
J12-1
J12-3
WHI/BLU
BLU
START
RUN
COMPRESSOR ASSY
LIMIT
THERM.
COMPRESSOR
MOTOR
3
PTC
ASSY
4
56
2
1
N
GRN/YEL-16
J8-1
J8-2
Chassis
Ground
Chassis
Ground
Door
Ground
Regulator
Board
BLK
BLK
DISPENSE
LOCKOUT
SWITCH
J3-1
J2-1
J1-1
_
+
_
+
_
+
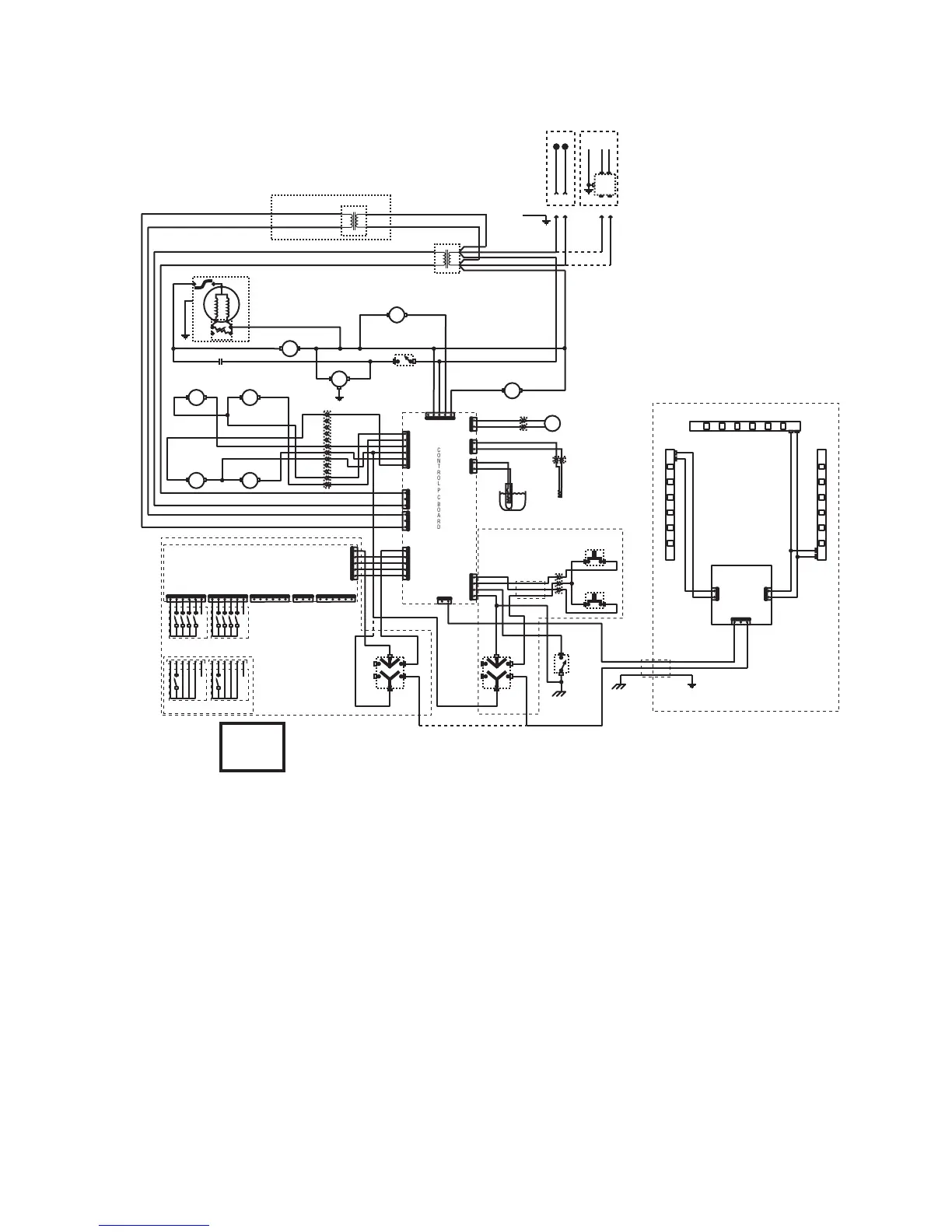
SCHEMATIC WIRING DIAGRAM JDF-2S
44744.2 062912
(Models with LED Lited Doors)

Other manuals for Bunn JDF-2S

Related product manuals