EasyManua.ls Logo

BWT FI CONNECT - Page 2

BWT FI CONNECT
Print Icon
To Next Page IconTo Next Page
To Next Page IconTo Next Page
To Previous Page IconTo Previous Page
To Previous Page IconTo Previous Page
Loading...
- 2 -
BWT Group
BWT FI Connect 30/ 45/ 55/ 70/ 85/ 105/ 130/ 160
R&D Department
DE-POOL-WÄRMEPUMPE
Konformitätserklärung
Richtlinien - Harmoni sierte Normen
Wir erklaren auf eigene Verant wortung , dass das Produkt den Richtlinien entspricht.
SAFETY EN 60335-1:2012/A2:2019 EN 60335-2-40:2003/A13:2012 EN 62233:2008
EMC EN 55014-1:2017 EN 61000-3-11:2000 EN 55014-2:2015 EN 61000-3-3:2013
EN 61000-3-12:2011 EN 61000-3-2:2014
NOISE 200/14/CE
Modelle:
Sonstige normative Dokumente Berechtigte Person der technischen Dokumentation
RoHS 2011/65/EU
WEEE 2012/19/EU
Entsorgung durch Privatpersonen von elektronischen Geraten am Lebensende:
Das Symbol des durchgestrichenen Mülleimers auf den Hauptteilen des Produkts verweist darauf, dass es nicht mit dem Haushaltsabfall
entsorgt werdendari. Es muss an eine geeignete Sammelstelle für das Recycling von elek tronischen Geraten übergeben werden (lnforma-
tionen beim iirtlichen Abfallsammeldiens t). Dieses Produkt enthalt potenziell gefahrliche Stoffe, die sich nachteilig auf die Umwelt und die
menschliche Ge sundheit auswirken kiinnen.
LIEFERUNG UND TRANSPORT
Nach dem Auspacken der WP prüfen Sie bitte den lnhalt, um eventuelle Schaden anzuzeigen. Prüfen Sie auch, ob der auf dem Manometer abgelesene Druck dem
Außentemperatur ; andernfalls konnte ein leck vorliegen
Die WP muss stets in stehender Position auf einer Palette und in der Driginalverpackung gelagert und transportiert werden.
Wenn die WP in liegender Position gelagert und/oder transportiert wurde, erlischt die Garantie.
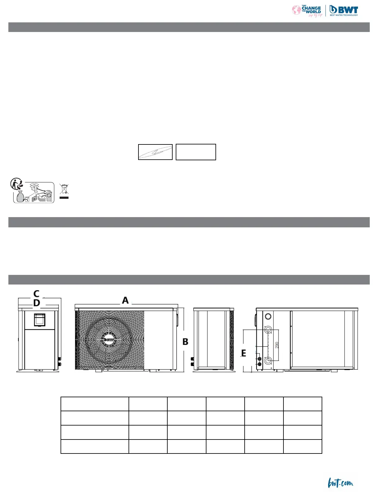
DIMENSIONS
Modelle
A B C D E
BWT FI CONNECT 30 - 70
970,2 mm 600,2 mm 403,7 mm 378,9 mm 396,2 mm
BWT FI CONNECT 85 - 105
1068,0 mm 696,7 mm 460,2 mm 433,9 mm 417,2 mm
BWT FI CONNECT 130 - 160 Mono/ Tri
1147,5 mm 862,5 mm 503,5 mm 472,5 mm 430 mm

Related product manuals