EasyManua.ls Logo

Calix GigaCenter 844E - Wall Mounting

Calix GigaCenter 844E
12 pages
Print Icon
To Next Page IconTo Next Page
To Next Page IconTo Next Page
To Previous Page IconTo Previous Page
To Previous Page IconTo Previous Page
Loading...
— 3 —
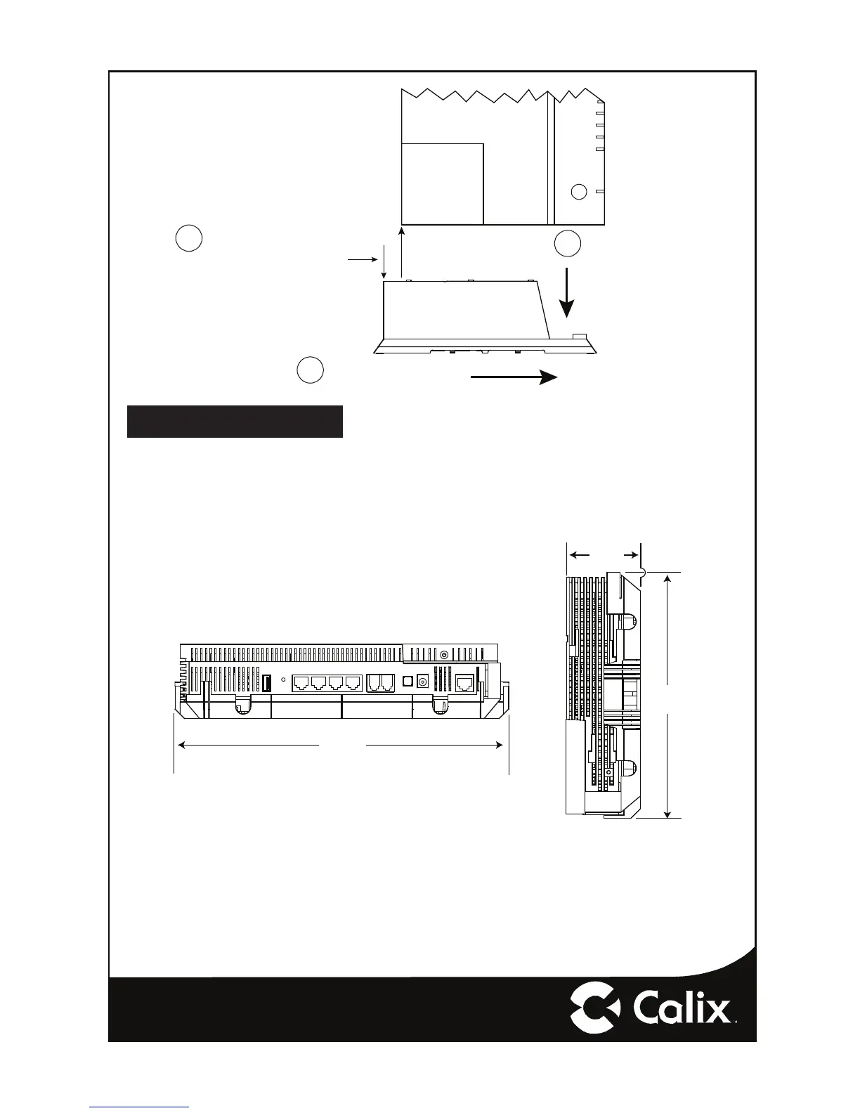
Wall Mounting
In order to facilitate wall mounting of the GigaCenter, a Wall Mount Bracket is required
(included with the GigaCenter).
Line-up GigaCenter and
Tabletop Stand as shown.
Allow a 9/16” offset between
the bottom corner of the GigaCenter
and the top edge of the Tabletop Stand
1
Slide GigaCenter down
onto Tabletop Stand until
flush
2
7211
Push stand to the right while
pulling the GigaCenter to the
left until locked into place
3
ETHERNET 2
ETHERNET 1
PHONE 1
PHONE 2
USB
WPS
11.0625”
28.1 cm
8.25”
20.95 cm
2.5”
6.4 cm
Dimensions with Wall Mount Tray Attached
7016

Related product manuals