EasyManua.ls Logo

Calorex PPT22 - Sincronización de la Bomba de Calor

Calorex PPT22
151 pages
Print Icon
To Next Page IconTo Next Page
To Next Page IconTo Next Page
To Previous Page IconTo Previous Page
To Previous Page IconTo Previous Page
Loading...
Pagina 15
Calorex Heat Pumps Ltd. · The Causeway, Maldon, Essex CM9 4XD, UK ·
Manual de instrucciones
PPT8/12/16/22LX/LY SLIMLINE
SD638150 EDICION 11
®
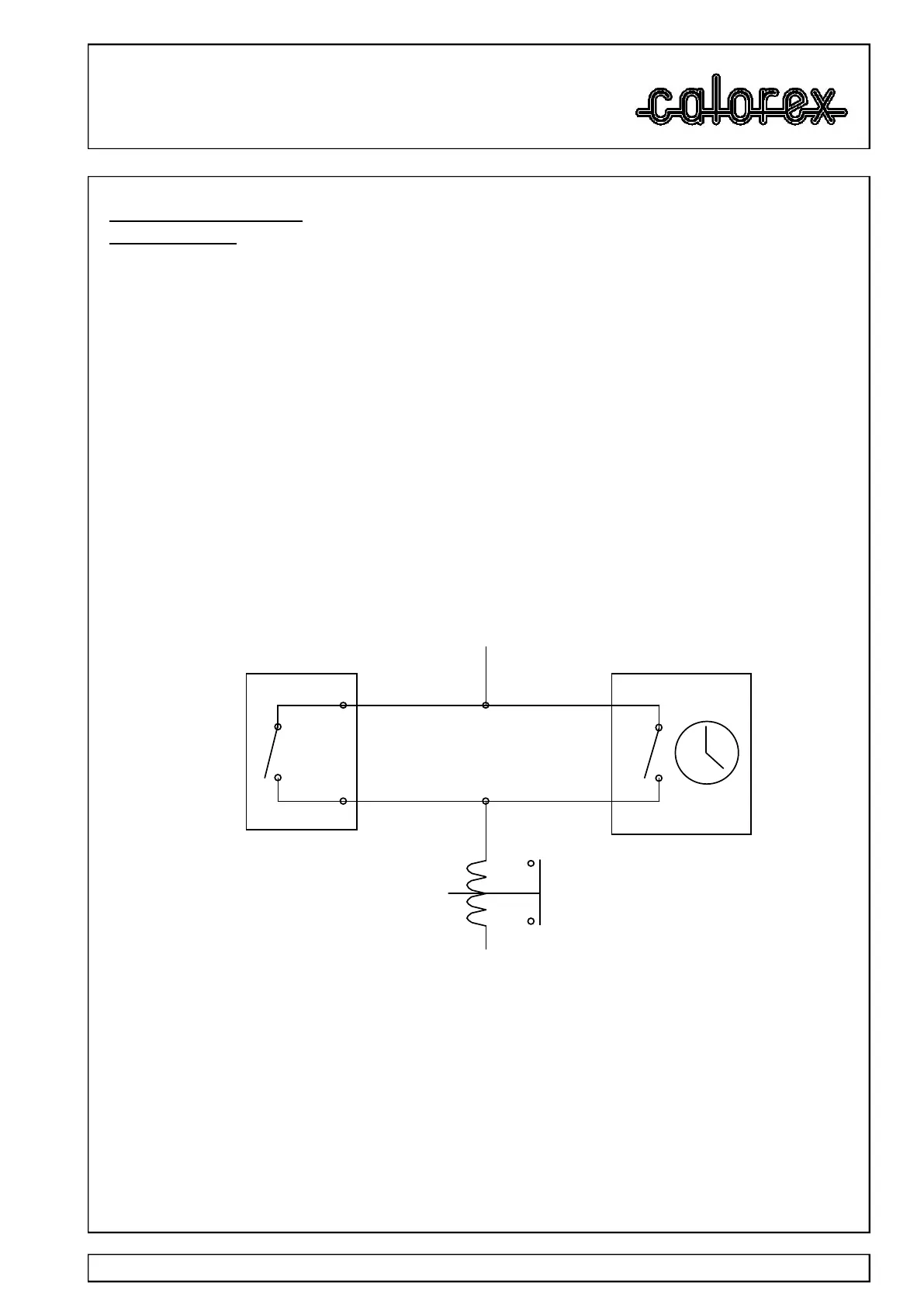
RELOJ DEL FILTRO
INSTALADO POR EL CLIENTE
N
L
BOMBA DE CALOR
CALOREX
COMPONENTES
EXTERNOS QUE
DEBEN SER
CONECTADOS AL
TERMINAL DENTRO
DE LA CAJA
ELECTRICA DE LA
MAQUINA
18
19
ARRANQUE DE
LA BOMBA
MAX 3A 370W
CV) A 250V
4.3 Sincronizacn de la
bomba de calor
Cuando esta función sea utilizada, una señal será transmitida hacia la
bomba de filtración forzando a que arranque durante 3 minutos cada hora,
permitiendo tomar la temperatura del agua.
1 Si la temperatura del agua no es satisfactoria la bomba de filtración sigue
funcionando
2 Si la temperatura del agua es la correcta la bomba de filtración para
hasta la próxima toma de temperatura.
En caso de que se utilice un reloj de filtración y que la bomba de filtración
este en un periodo de no funcionamiento, arrancatambién durante tres
minutos cada hora. La función prioritaria de calefacción se traspasara al
reloj de programación de la bomba de filtrado.
Esta función se utiliza con el objetivo de maximizar el tiempo de filtración
en función de la temperatura deseada y de reducir el desgaste de la bomba
de filtración.
Un par de contactos secos (numerados 14 y 15) están disponibles para
permitir que la bomba de calor está encendido o apagado a distancia.

Table of Contents

Other manuals for Calorex PPT22

Related product manuals