EasyManua.ls Logo

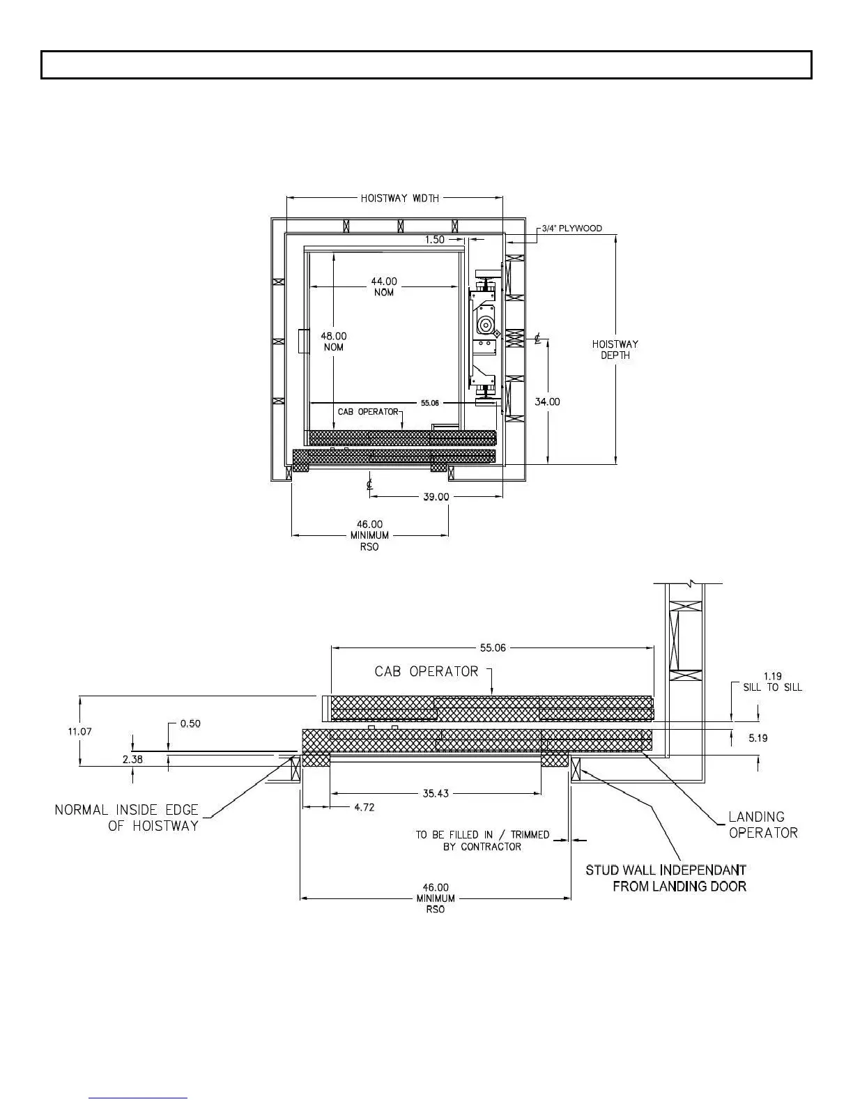
Cambridge Elevating Elmira - Www.cambridgeelevating.com August; Cambrian Landing Frame Details - Layout

Default Icon
21 pages
Print Icon
To Next Page IconTo Next Page
To Next Page IconTo Next Page
To Previous Page IconTo Previous Page
To Previous Page IconTo Previous Page
Loading...
www.CambridgeElevating.com August 2017
13
Cambrian Landing Frame Details – Layout
It is the recommendation of Cambridge Elevating to leave door walls wide open for installation.