EasyManua.ls Logo

Cambridge Elevating Elmira - Page 15

Default Icon
21 pages
Print Icon
To Next Page IconTo Next Page
To Next Page IconTo Next Page
To Previous Page IconTo Previous Page
To Previous Page IconTo Previous Page
Loading...
www.CambridgeElevating.com August 2017
15
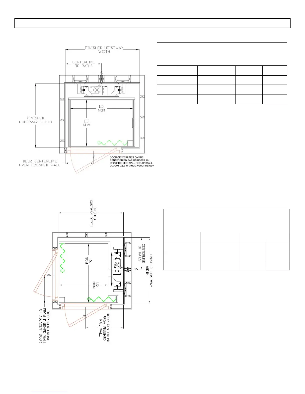
Elmira Model Cab / Hoistway Size Layout
TYPE 3 or 4 (90-DEGREE) LH or RH
Cab Size
Centerlines Hoistway Size
Width x Depth
Landing
Door
Rail
Wall
44” x 42” 54” x 56.25” 31” 27”
48” x 42” 58” x 56.25” 35” 29”
54” x 48” 64” x 62.25” 41” 32”
60” x 48” 70” x 62.25” 47” 35”
Please note dimensions remain for mirrored configurations.
TYPE 5 – INLINE
Cab Size
Hoistway Size
Centerlines
Width x Depth
Landing
Door
Rail
Wall
36” x 48” 51.75” x 54.25” 28.5” 25.25”
40” x 60” 55.75” x 66.25” 33” 31.25”
48” x 48” 63.75” x 54.25” 40.5” 25.25”
48” x 60” 63.75” x 66.25” 40.5” 31.25”
Please note dimensions remain for mirrored configurations.