EasyManua.ls Logo

CAME FTL Series - Page 14

CAME FTL Series
128 pages
Go to English
To Next Page IconTo Next Page
To Next Page IconTo Next Page
To Previous Page IconTo Previous Page
To Previous Page IconTo Previous Page
Loading...
2
3
1
6 4
10
9
58
7
11
12
13
14
15
16
17
Pag. 14 - Manuale FA00995-IT - 01/2018 - © CAME S.p.A. -
Istruzioni originali
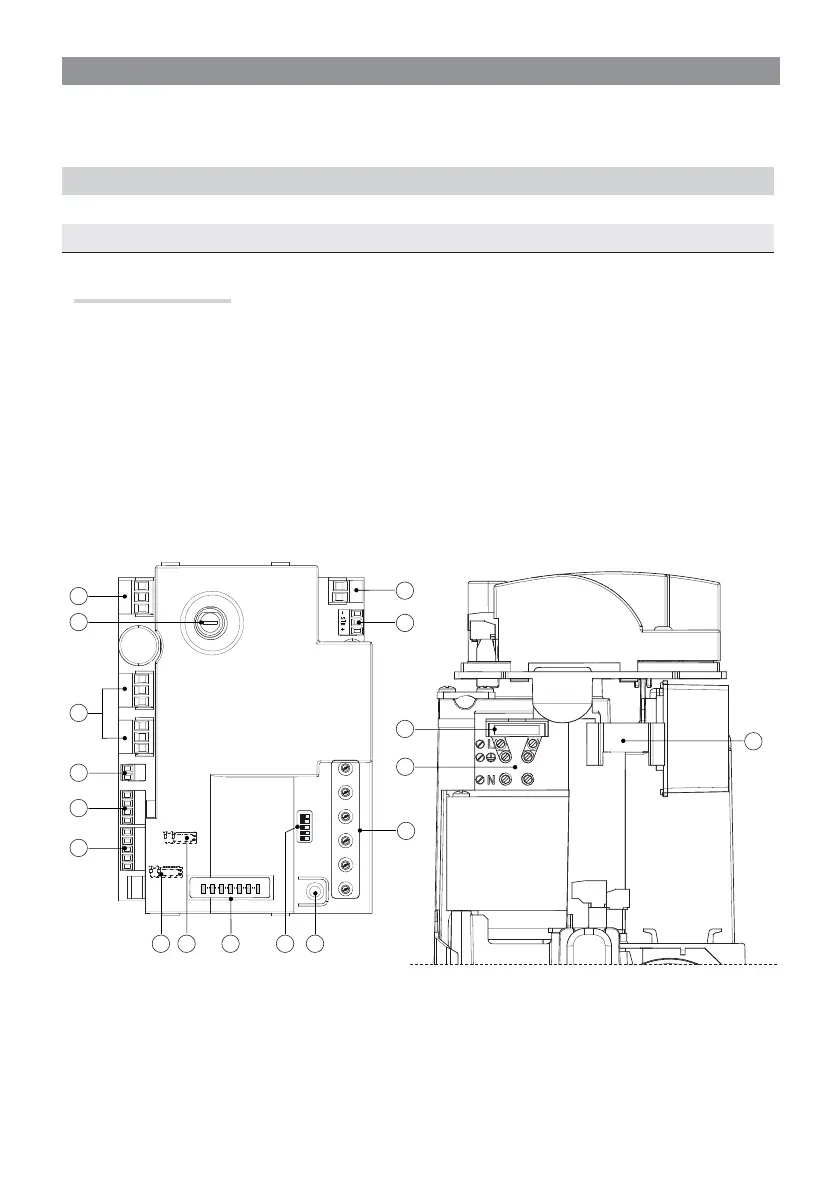
SCHEDA COMANDO
Prima di intervenire sul quadro comando, togliere la tensione di linea e, se presenti, scollegare le
batterie.
Tutte le connessioni sono protette da fusibili rapidi.
Fusibili ZL60
Linea 2 A-F = 230 V
Accessori / scheda 2 A-F
Descrizione delle parti
1. Morsettiera trasformatore
2. Morsettiera modulo RGP1
3. Trimmer
4. Tasto programmazione
5. DIP
6. LED segnalazione
7. Connettore scheda R800
8. Connettore scheda AF
9. Morsettiera dispositivi di sicurezza
10. Morsettiera dispositivi di comando
11. Morsettiera selettore a tastiera
12. Morsettiere motoriduttori
13. Fusibile accessori / scheda
14. Morsettiera dispositivo di segnalazione
15. Fusibile linea
16. Morsettiera alimentazione
17. Allogiamento modulo RGP1

Related product manuals