EasyManua.ls Logo

Carisma CRC–ECM - Technical Characteristics; Hydraulic Connections

Carisma CRC–ECM
35 pages
Print Icon
To Next Page IconTo Next Page
To Next Page IconTo Next Page
To Previous Page IconTo Previous Page
To Previous Page IconTo Previous Page
Loading...
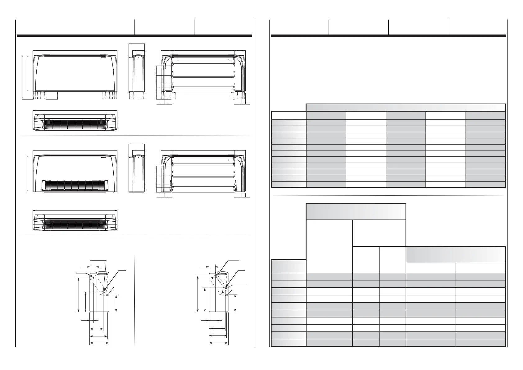
Ø 1/2" F
M
37
O
N
T
Ø 15 ext.
B
H
230
IN
OUT
P
R
S
321
T
H
B
230
OUT
IN
Ø 15 ext.
Ø 1/2" F
A
530
A
B
170
71 44 125 133
158 158C
60
60
A
530
630
A
B
170
100
158 158
71 44 125 133
C
100
60 60
MV
MO – MVB
ATTACCHI IDRAULICI - HYDRAULIC CONNECTIONS - WASSERANSCHLÜSSE
RACCORDS HYDRAULIQUES - CONEXIONES HIDRÁULICAS - HYDRAULISCHE AANSLUITINGEN
10 10A
CARATTERISTICHE
TECNICHE
TECHNICAL
CHARACTERISTIC
CARACTERISTIQUES
TECHNIQUES
TECHNISCHE
EIGENSCHAFTEN
CARACTERÍSTICAS
TÉCNICAS
TECHNISCHE
KARAKTERISTIEKEN
• Batteria
a 3 o 4 ranghi
3 or 4 row
heat exchanger
Batterie à 3 ou 4 rangs
3- oder 4-Reihige
Batterie
• Batería
con 3 o 4 filas
• Batterij
met 3 of 4 rangen
• Batteria addizionale
di riscaldamento
(1 rango o 2 ranghi)
1 or 2 row additional
heat exchanger
• Batterie additionnelle
de chauffage
(à 1 rang ou 2 rangs)
• Zusatzregister
für Heizleistung
(1- oder 2-Reihige)
• Batería adicional
de calefacción
(con 1 fila o 2 filas)
• Extra batterij
voor verwarming
(1 rij of 2 rijen)
Piedini non inclusi (accessorio)
Feet (optional)
Pieds non compris (en option)
Füße nicht im Preis enthalten (Zubehör)
Pies de apoyo no incluidos (accesorio)
Voeten niet inbegrepen (optioneel)
Assorbimento motore
-
Motor absorption
Consommation moteur
-
Leistungsaufnahme Motor
Consumo motor
-
Motorabsorptie
W (MAX)A (MAX)
Contenuto acqua (Litri)
-
Water contents (litres)
Contenance eau (l)
-
Wasserinhalt (Liter)
Contenido agua (Litros)
-
Waterinhoud (Liter)
20,5
20,5
25,0
25,0
32,0
32,0
41,0
41,0
99,0
99,0
0,18
0,18
0,22
0,22
0,28
0,28
0,34
0,34
0,81
0,81
0,6
0,8
0,9
1,3
1,6
2,2
1,7
2,4
1,9
2,8
0,2
0,2
0,3
0,3
0,5
0,5
0,5
0,5
0,6
0,6
0,4
0,6
1,0
1,0
1,2
23
24
43
44
63
64
73
74
93
94
MOD.
Impianto a 2 tubi
2 pipe units
Installation à 2 tubes
2-Leiter-Anlage
Instalación 2 tubos
Installatie met 2 leidingen
Impianto a 4 tubi
4 pipe units
Installation à 4 tubes
4-Leiter-Anlage
Instalación 4 tubos
Installatie met 4 leidingen
+1 +2
Rango
Row
Rang
Reihe
Fila
Rangen
Ranghi
Rows
Rangs
Reihen
Filas
Rangen
Dimensioni (mm)
-
Dimensions (mm)
-
Dimensions (mm)
-
Dimensionen (mm)
-
Dimensión (mm)
-
Afmetingen (mm)
A
B
C
H
M
N
O
P
R
S
T
770
225
454
205
145
260
460
185
105
475
55
985
225
669
205
145
260
460
185
105
475
55
1200
225
884
205
145
260
460
185
105
475
55
1415
225
1099
205
145
260
460
185
105
475
55
1415
255
1099
235
170
270
450
210
110
465
85
24679
MOD.