EasyManua.ls Logo

Carisma CRC–ECM - Page 29

Carisma CRC–ECM
35 pages
Print Icon
To Next Page IconTo Next Page
To Next Page IconTo Next Page
To Previous Page IconTo Previous Page
To Previous Page IconTo Previous Page
Loading...
EV1
M4
T1
+0
T1
IN1
B
SEC1
UL
B
L
-10
EV2
M5
N
N
M1
T3
A
A
N
T3
1
AB
2
M2
AUX
IN1P
M1
SW2
CONFIGURATION
1
4
6
2
5
3
INVERTER
BLAC
BOARD
M
230V
50Hz
N
L
010
3
INVERTER
BLAC
BOARD
M
230V
50Hz
N
L
010
3
SW2
CONFIGURATION
1
4
6
2
5
3
CR
-
T
-
ECM
MFC
11
BK
6
GNYE
15
8
BU
Q1
L
POWER
SUPPLY
230Vac 50Hz
RD
N
L
WH
BK
BU
7
PE
1210
N
9
45
1413
PE
E1
E2
9
N
GNYE
L
8
4
WH
10
5
14
BK
BU
MFC
N
POWER
SUPPLY
230Vac 50Hz
RD
7
11
Q1
BK
12
L
6
PE
1513
BU
PE
E1
E2
N
EV1
N
T3
N
T3
T1
EV2
T1
UL
ABBA
M1
L
M5
IN1
SEC1
2
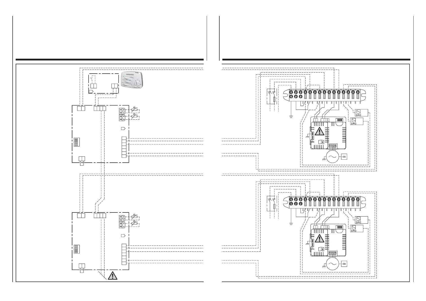
MAX 16 UNITS
MAX TOTAL LENGHT 260 Mt
M4
+0
-10
+0
-10
L
N
UL
EV1
+0
EV2
L
N
UL
EV1
EV2
-10
+0
-10
L
N
UL
EV1
+0
EV2
L
N
UL
EV1
EV2
-10
29 29A
Steuerung meherer (max. 16)
Geräte mit dem Signal einer einzigen Fernbedienung.
Controlar varios aparatos (como máximo 16)
mediante la señal de un único mando a distancia.
Bediening van meerdere apparaten (max. 16)
via een signaal afkomstig van een enkele afstandbediening.
SCHALTPLÄNE / ESQUEMAS ELÉCTRICOS / ELEKTRISCHE SCHEMA’S
Controllo di più apparecchi (Max 16)
su segnale di un unico comando remoto.
Up to 16 units to be cotrolled
by the signal from a single remote control unit.
Contrôler plusieurs appareils (16 maxi)
sur signal d’une seule commande à distance.
SCHEMI ELETTRICI / WIRING DIAGRAMS / SCHEMAS ELECTRIQUES