EasyManua.ls Logo

Carrier 17 - Motor Maintenance (Open-Drive Machines)

Carrier 17
116 pages
Print Icon
To Next Page IconTo Next Page
To Next Page IconTo Next Page
To Previous Page IconTo Previous Page
To Previous Page IconTo Previous Page
Loading...
Motor Maintenance (Open-Drive Machines)
A carefully planned and executed program of inspection and
maintenance will do much to ensure maximum motor avail-
ability and minimum maintenance cost. If it becomes nec-
essary to repair, recondition, or rebuild the motor, it is rec-
ommended that the nearest Westinghouse apparatus repair
facility be consulted.
In addition to a daily observation of the appearance and
operation of the motor, it is recommended that a general in-
spection procedure be established to periodically check the
following items:
1. Cleanliness, both external and internal
2. Stator and rotor (squirrel-cage) windings
3. Bearings
CLEANLINESS On open ventilated motors, screens and
louvers over the inlet air openings should not be allowed to
accumulate any build-up of dirt, lint, etc. that could restrict
free air movement. Screens and louvers should never be cleaned
or disturbed while the motor is in operation because any dis-
lodged dirt or debris can be drawn directly into the motor.
If the motor is equipped with air filters, they should be
replaced (disposable type) or cleaned and reconditioned (per-
manent type) at a frequency that is dictated by conditions. It
is better to replace or recondition filters too often than not
often enough.
Totally enclosed, air-to-air cooled (TEAAC) motors and
totally enclosed, fan-cooled (TEFC) motors require special
cleaning considerations. The external fan must be cleaned
thoroughly since any dirt build-up not removed can lead to
imbalance and vibration. All of the tubes of the air-to-air heat
exchanger of TEAAC motors should be cleaned using a sup-
plied tube brush having synthetic fiber bristles (not wire of
any type). The standard cooler is equipped with steel tubes,
however, in special cases aluminum tubes may be used and
wire brushes can seriously erode the tube interiors over sev-
eral cleanings. All tube brushing should be conducted from
the front (fan end) toward the drive end of the motor such
that dislodged dirt will not fall into the fan housing.
Water spray washing of motors is not recommended.
Manual or compressed air cleaning is preferred. If it be-
comes necessary to spray wash a motor, it should be
done with extreme care. Do not aim high pressure sprays
directly at air inlet openings, conduit connections, shaft
seals, or gasketed surfaces to prevent the possibility of
forcing water inside the machine.
The stator windings of motors with open ventilation sys-
tems can become contaminated with dirt and other sub-
stances brought into the motor by the ventilating air. Such
contaminants can impair cooling of the winding by clogging
the air passages in the winding end-turns and vent ducts through
the stator core and by reducing heat transfer from the wind-
ing insulation surfaces to the cooling air. Conducting con-
taminants can change or increase electrical stresses on the
insulation and corrosive contaminants can chemically attack
and degrade the insulation. This may lead to shortened in-
sulation life and failure.
Several satisfactory methods of cleaning stator windings
and stator cores are offered below:
Compressed Air Low pressure (30 psi max.), clean (no
oil) and dry air can be used to dislodge loose dust and par-
ticles in inaccessible areas such as air vent ducts in the stator
core and vent passages in the winding end-turns. Excessive
air pressure can damage insulation and can drive contami-
nants into inaccessible cracks and crevices.
Vacuum Vacuum cleaning can be used, both before and
after other methods of cleaning, to remove loose dirt and
debris. It is a very effective way to remove loose surface
contamination from the winding without scattering it. Vacuum
cleaning tools should be nonmetallic to avoid any damage to
the winding insulation.
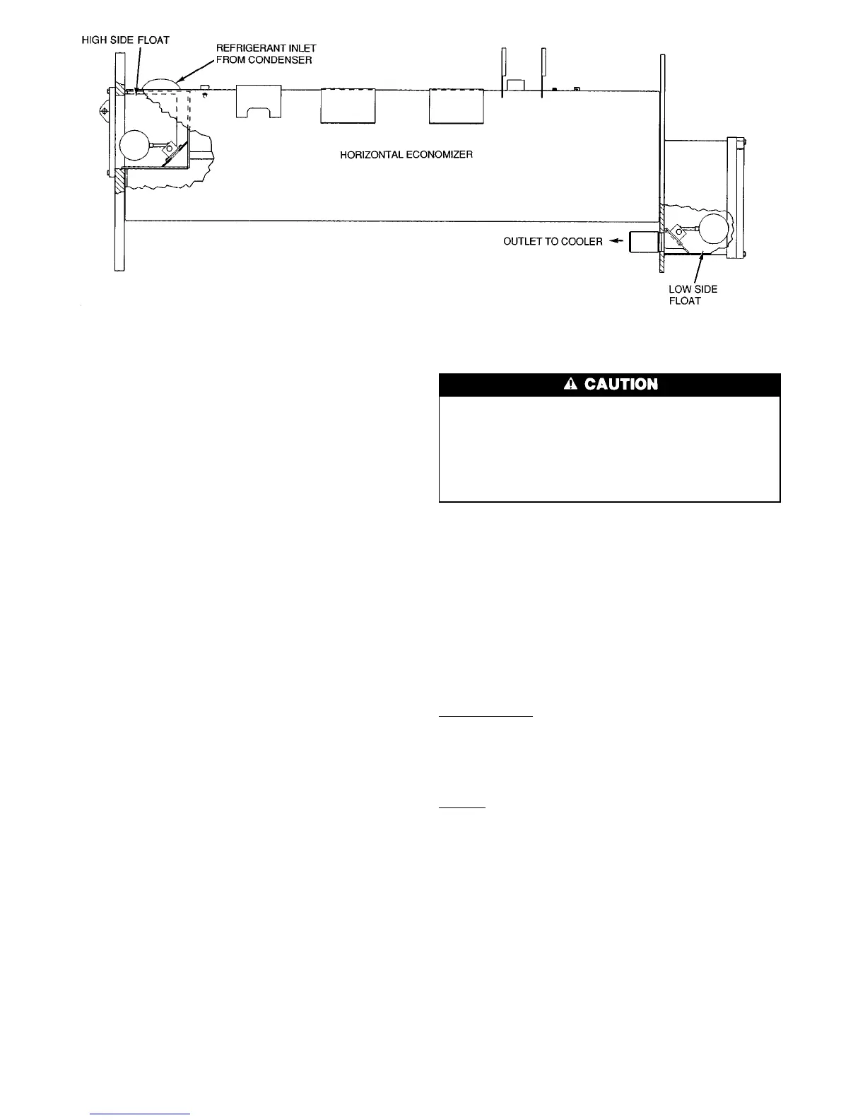
Fig. 45 Typical Float Valve Arrangement
78

Table of Contents

Related product manuals