EasyManua.ls Logo

Carrier 30GX080-265 - Field Wiring Diagram; Field Wiring Diagram Notes

Carrier 30GX080-265
12 pages
Print Icon
To Next Page IconTo Next Page
To Next Page IconTo Next Page
To Previous Page IconTo Previous Page
To Previous Page IconTo Previous Page
Loading...
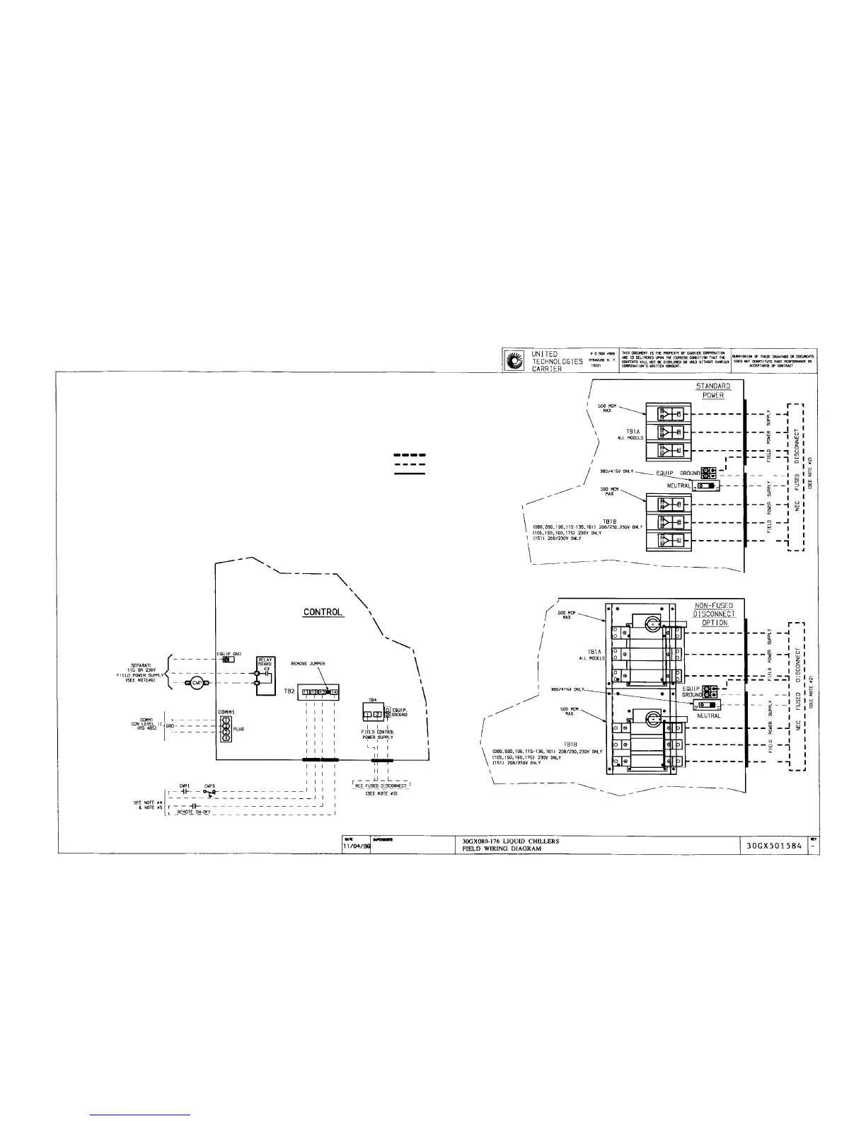
FIELD WIRING DIAGRAM
NOTES:
1. Factory wiring is in accordance with National Electrical Code (NEC). Field modifica-
tions or additions must be in compliance with all applicable codes.
2. Wiring for main field power supply must be rated 75° C minimum. Use copper for all
units. Maximum incoming wire size for each terminal block is 500 kcmil.
3. Power for control circuit should be supplied from a separate source through a field
supplied fused disconnect with 30 amp maximum protection for 115 volt control circuits
and 15 amp maximum protection for 230 volt control circuit. Connect control circuit
power to terminals 1 and 2 of TB4. Connect neutral side of supply to terminal 2 of TB4.
Control circuit conductors for all units must be coppr only. 380/415 control power wired
at factory. Requires field supplied neutral connection.
4. Terminals 13 and 14 of TB2 are for field external connection for remote ON-OFF. The
contacts must be rated for dry circuit application capable of handling a 24 vac to 50 mA
load.
5. Terminals 11 and 12 of TB2 are for chilled water flow switch (CWFS) and chilled water
pump interlock (CWPI) functions. The contacts must be rated for dry circuit application
capable of handling a 24 vac to 50 mA load.
6. Terminals T3 and T4 on relay board are for chilled water pump. The maximum load
allowed for the chilled water pump relay is 125 va sealed, 1250 va inrush at 115 or
230 volt.
LEGEND
CCN Carrier Comfort Network
CWFS Chilled Water Flow Switch
CWP Chilled Water Pump
CWPI Chilled Water Pump Interlock
EQUIP Equipment
GND,GRD Ground
TB Terminal Block
Field Power Wiring
Field Control Wiring
Factory Installed Wiring
11
CUT ALONG DOTTED LINE CUT ALONG DOTTED LINE
----------------------------------------------------------------------------------------

Related product manuals