EasyManua.ls Logo

Carrier 38C Series - Typical Wiring Schematic Diagrams

Carrier 38C Series
32 pages
To Next Page IconTo Next Page
To Next Page IconTo Next Page
To Previous Page IconTo Previous Page
To Previous Page IconTo Previous Page
Loading...
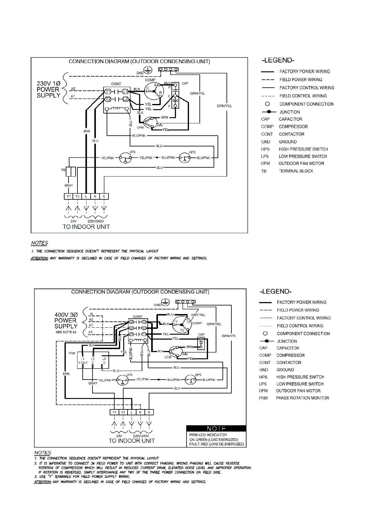
Typical Wiring Schematic
38CKP18-24-30-36 (230V/240V-1PH-50Hz) - Ducted
38CKP36-42-48-60 (400V/415V-3PH-50Hz) - Ducted
Page 6

Related product manuals