EasyManua.ls Logo

Carrier 38MHRBC18AA3 - Wiring Diagram Size − Cooling Only Size 12 K

Carrier 38MHRBC18AA3
74 pages
To Next Page IconTo Next Page
To Next Page IconTo Next Page
To Previous Page IconTo Previous Page
To Previous Page IconTo Previous Page
Loading...
11
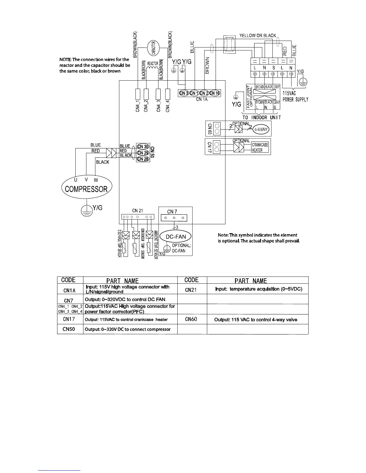
WIRING DIAGRAMS (COOLING ONLY)
Fig. 7 – Wiring Diagram Size − Cooling Only Size 12K (115V)

Table of Contents

Other manuals for Carrier 38MHRBC18AA3

Related product manuals