EasyManua.ls Logo

Carrier 38QPCT18H-708 - Page 29

Carrier 38QPCT18H-708
54 pages
Print Icon
To Next Page IconTo Next Page
To Next Page IconTo Next Page
To Previous Page IconTo Previous Page
To Previous Page IconTo Previous Page
Loading...
27
L
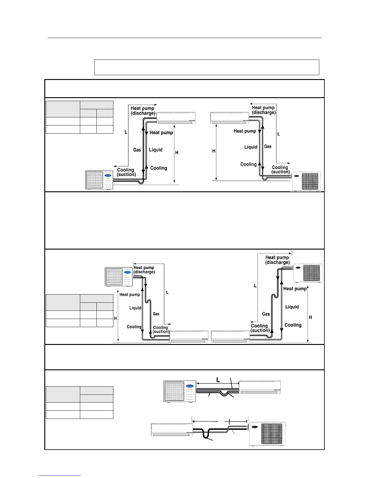
CONNECTING REFRIGERANT PIPING LINES (Cont.)
16.3 USE OF REFRIGERANT PIPING LINES
The following data refers to the use of refrigerant piping lines of diameters equivalent to that use in
units where : L = Maximum length of refrigerant piping lines between outdoor and indoor units.
H = Maximum vertical distance between outdoor and indoor units.
(A) OUTDOOR UNIT BELOW INDOOR UNIT :
Slop tubing towards the outdoor unit with a fall of at least (6mm) to (305mm).
(B) OUTDOOR UNIT ABOVE INDOOR UNIT :
If height is less than or equal 4 meters, one oil trap must be at the gas line at the base of gas
riser near the Indoor unit to facilitate oil return to the compressor to ensure efficiency of
compressor mechanical parts.
If height is more than 4 meters, more than one oil trap must exist at the gas line, the first one
will be at the gas line near to the indoor unit and the following one will be 4 meters from the
first one and so on.
(C) OUTDOOR UNIT ON THE SAME LEVEL AS INDOOR UNIT:
An oil trap is preferred to be at the gas line at the base of gas riser near the Indoor unit to
facilitate oil return to the compressor to ensure efficiency of compressor mechanical parts.
Model
Meters
L H
53QPCT18 20 10
53QPCT24 20 10
Oil trap
Liquid
Gas
Outdoor Unit
18K
Indoor Unit
18K
Model
Meters
L H
53QPCT18 20 10
53QPCT24 20 10
Model
Meters
L
53QPCT18 20
53QPCT24 20
Outdoor Unit
24K
Indoor Unit
24K
Outdoor Unit
18K
Outdoor Unit
24K
Indoor Unit
18K
Indoor Unit
24K
Oil Trap
Liquid
Gas
Indoor Unit
18K
Indoor Unit
24K
Outdoor Unit
18K
Outdoor Unit
24K

Related product manuals