EasyManua.ls Logo

Carrier 40GKX036 703-40 Series - Wiring Diagram (Cooling;Heat Pump)

Carrier 40GKX036 703-40 Series
18 pages
To Next Page IconTo Next Page
To Next Page IconTo Next Page
To Previous Page IconTo Previous Page
To Previous Page IconTo Previous Page
Loading...
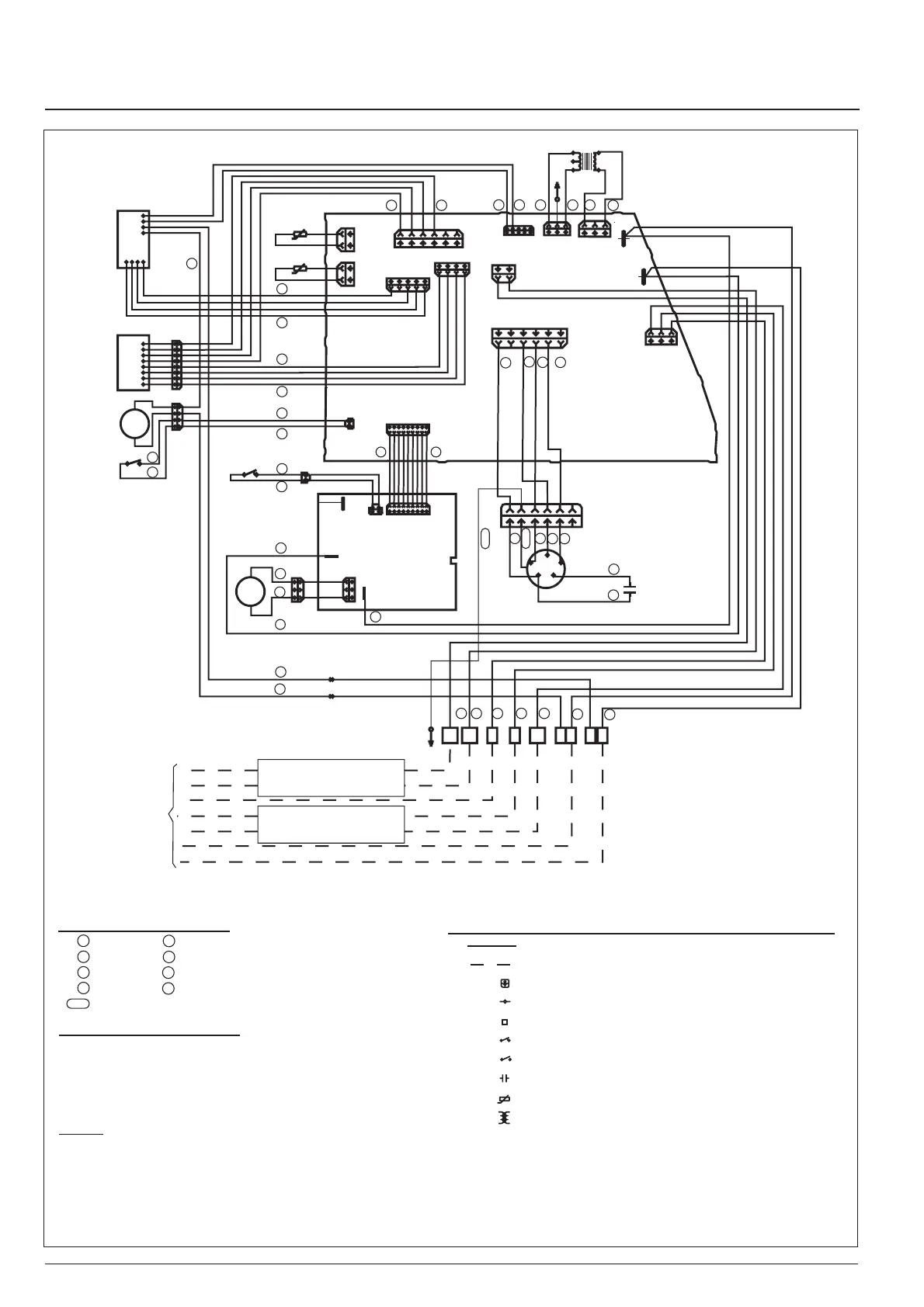
40 GKX
GB - 12
MAIN
BOARD
AUX
BOARD
L2
J4
L1
J1-PCB TRACE
J3
P1
C
G
G
G
G
WW
C
B
C
C
A
PS
C5
C4
C2
NEUTRAL
COMP.
SENSOR
SENSOR
RV
OFM
LINE
A
R
Y-G
W
W
B
B
C
C
G
G
IFM
C
C
R
R
OD COIL
B
B
A
A
A
A
R
R
LM
PRIM
SEC
T
Y/G
A
B
RR R OC
IDR/FAN
6
1
1
9
1
1
8
1
COMP
RVS
ODRFAN
SWG-LVR
LED-BRD
B
B
TM COIL
TM AIR
COIL
AIR
Y
Y
BUTTON BRD
AUX BRD
P2
P3
R
R
R
R
IR-CONN
BOARD
LED-I.R.
BOARD
BUTTON
J2
J7
J12
J3
J4
J5
J1
J9
J6
J10
J8
C3
C1
W2
Y
S2
S1
O
*
*
FS
FC
MSL
HEAT PUMP SYSTEM ONLY
HEAT PUMP SYSTEM ONLY
TO OUTDOOR UNIT
OUTDOOR COIL SENSOR
OUTDOOR UNIT FAN
OUTDOOR UNIT CONNECTIONS:
W2-
S1-S2
O-
COMPRESSOR CONTACTOR
LIVE POWER SUPPLY
NEUTRAL POWER SUPPLY
Y-
R-
C-
REVERSING VALVE
LEGEND
-
FAN CAPACITOR
TRANSFORMER
FC
NORMALLY OPEN CONTACT
FIELD WIRING
CONNECTOR
FACTORY WIRING
TERMINAL ON COMPONENT
TERMINAL ON STRIP
NORMALLY CLOSE CONTACT
CAPACITOR
SENSOR
SAFETY MICRO FLOAT
INDOOR FAN MOTOR
DRAIN PUMP
TRANSFORMER
LOUVRE MOTOR CONNECTOR
PUMP CONNECTOR
LOUVRE MOTOR
MICROSWITCH LOUVRE
IF PRESENT
FAN MOTOR CONNECTOR
FLOAT CONNECTOR
LED/I.R. BOARD CONNECTOR
FS
PS
T
C4
C3
C5
LM
MSL
C2
C1
IFM
*
*
*
A
B
C
Y-G
G
BLUE
BLACK
YELLOW/GREEN
GREY
BROWN
WIRE COLOURS:
W
R
O
Y
WHITE
RED
ORANGE
YELLOW
IF FACTORY WIRING AND SETTINGS ARE
IMPORTANT
THE WARRANTY WILL BE INVALIDATED,
FIELD-CHANGED.
Wiring diagram - Cooling only or heat pump units

Related product manuals