EasyManua.ls Logo

Carrier 40MKCC - OUTDOOR UNIT SCHEMATIC DIAGRAM (CONT.)

Carrier 40MKCC
34 pages
Print Icon
To Next Page IconTo Next Page
To Next Page IconTo Next Page
To Previous Page IconTo Previous Page
To Previous Page IconTo Previous Page
Loading...
13
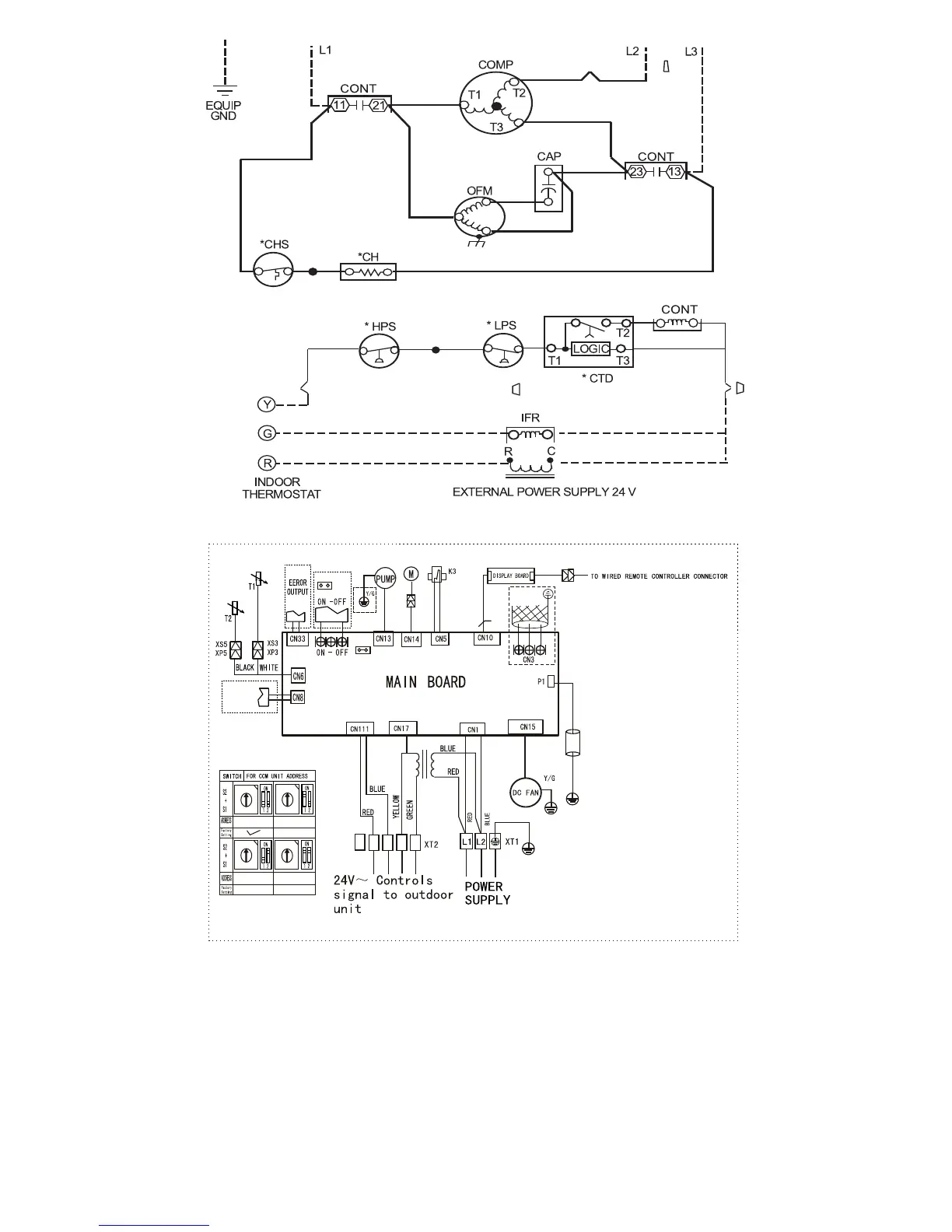
Fig. 10 24AHA4/124ANS Wiring Diagram 208/230 -- 460V 3 Phase
CN 23
To C CM
Comm.Bus
X
Y
E
FAN
10
JR6
JR6
Ma gnetism link
0
8
4
1
2
3
5
6
7
C
9
A
B
D
E
F
0~15
32~47
0
8
4
1
2
3
5
6
7
C
9
A
B
D
E
F
0
8
4
1
2
3
5
6
7
C
9
A
B
D
E
F
0
8
4
1
2
3
5
6
7
C
9
A
B
D
E
F
16~31
48~63
Y
C
R
O
Legend:
................Model sp ecic fea ture
CN 1:
CN 17:
CN111 :
CN 8:New fan
CN 6: Co nnectors
Live wire L1/Null l ine L2
Controls 24V sign al interfac e(R/C)
Signal in terface(Y /O)
interface
interface
CN 33: R emote ala rm interfa ce
CN 23: R emote sw itch interface
CN 13: P ump interface
CN 14: S wing motor interfa ce
CN 5: Wa ter level s witch interface
CN 10: D isplay bo ard interface
CN 3: Ce ntralized control sy stem Inte rface
P 1 :Magn etism link interface
CN 15: M otor interface
T1: Room tempera ture sens or
T2: Pipe temperature senso r
XT1:3 po le termina l block
XT2:5 po le termin al block
Notes:
1.To be wired in accor dance w ith National
Electric N.E.C. and loca l codes.
2.Use C opper co nductors only.
Use con ductors suitable for at lea st 75*C( 167*F).
3. If any of the o riginal wires, as supplied
must be replace d, use th e same or equiv alent wir e.
Fig. 11 40MKQ**C Wiring Diagram

Related product manuals