EasyManua.ls Logo

Carrier 40VMM Series - Controller Positioning and Wiring

Carrier 40VMM Series
25 pages
To Next Page IconTo Next Page
To Next Page IconTo Next Page
To Previous Page IconTo Previous Page
To Previous Page IconTo Previous Page
Loading...
16
Step 6 — Position and Connect Controller —
Wired controllers should be installed in a position that
maintains good temperature control:
Position the thermostat approximately 48 inches above
floor level.
Do not position the thermostat where it can be directly
affected by the unit’s discharge airstream.
Avoid external walls and drafts from windows and doors.
Avoid positioning near shelves and curtains as these
restrict air movement.
Avoid heat sources such as direct sunlight, heaters,
dimmer switches, and other electrical devices.
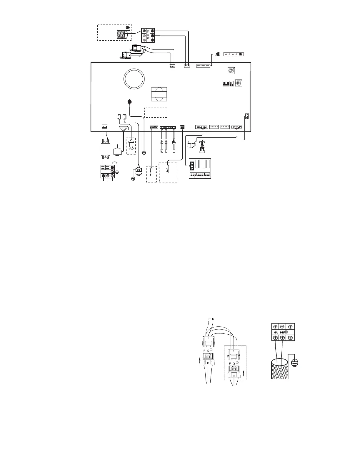
See Fig. 24 for an example of communication wire
connection.
CONTROL WIRING
1. Use copper core PVC insulated sheathed shielded twisted
wire.
2. For indoor unit and outdoor unit communication, use P,
Q terminals. Shielded core should be used for ground.
3. Wiring should be run according to the wiring diagram.
4. Communication wire must not form a closed loop.
Fig. 23 — 40VMM012-048 Typical Wiring Diagram
LEGEND
NOTE: Field wiring must use copper conductors only.
ACB Auxiliary Control Board
ALARM Warning Lamp
AUXH Output For Auxiliary Heat
CS Condensate Switch
CTON Output for Cooling Operation
EEV Electronic Expansion Valve
FAN DC Indoor Fan
FM Indoor Fan Motor
HTON Output For Heating Operation
PUMP Pump Motor
T1 Room Temperature Sensor
T2A Inlet Pipe Temperature Sensor
T2B Outlet Pipe Temperature Sensor
XP1-4, Connectors
XS1-4
XT1-2 Terminal Block
---------- Optional Component or Field Wiring
CN2
Y/G
L1 L2
FILTER
LOAD
LINE
RED
RED
BLUE
BLUE
POWER IN
XT1
EEV
AH
BH
FM
ALARM
PUMP
CN24
N3 CN1C8
EARTH
Y/G
CN15CN9CN17
controller
comm. bus
To wired
To outdoor/indoor/MDC
units comm. bus
CN51
CN50
ACB interface
( Current range: 0-1A)
(Voltage range: 0-24V AC/DC)
FAN
CTON
HTON
AUXH
T2A
T2B
T1
XS3
XP3
XS1
XP1
XS2
XP2
XP4
XS4
Display Board
YELLOW
GRAY
WHITE
BLUE
ON/OFF
SWITCH
SW1 SW8
Main Board
ON ON
ENC2
CS
XT2
CN14
CN21 CN12
CN4
CN5
CN54
CN52
CN8
Occupancy
sensor/ON-OFF
(Dry contact)
P
Q
P
Q
ENC1
“ +5V GND +12V ”
ONLY USED
RED
FOR TESTING
WHITE
BLUE

Related product manuals