EasyManua.ls Logo

Carrier 42CA - Page 10

Carrier 42CA
60 pages
Print Icon
To Next Page IconTo Next Page
To Next Page IconTo Next Page
To Previous Page IconTo Previous Page
To Previous Page IconTo Previous Page
Loading...
10
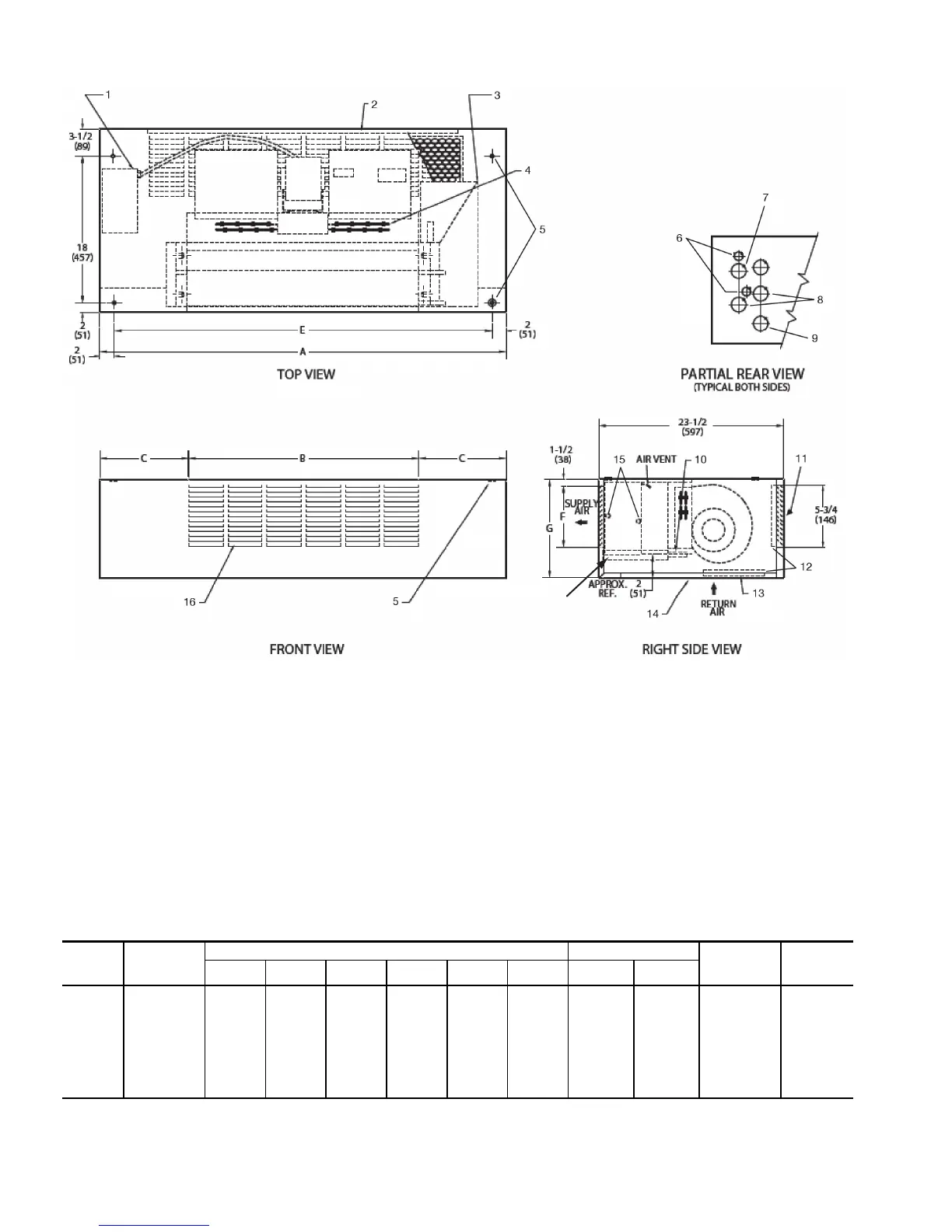
Fig. 6 — 42CG Horizontal Cabinet with Electric Heat Dimensions
17
LEGEND
1— Junction Box, 4 in. x 4 in.
2— Optional Stamped Rear Return Grille
3— Drip Lip (optional, shipped loose)
4— Electric Strip Heater Element
5— Mounting Holes (4), Rubber Grommets
have
3
/
8
-in. Diameter Hole
6— Electrical Knockout,
7
/
8
-in. Diameter
7— Return Knockout, 1-in. Diameter
8— Supply Knockout, 1
1
/
2
-in. Diameter
9— Drain Knockout, 1
1
/
2
-in. Diameter
10 Drain Connection,
7
/
8
-in. OD
11 Valve Package (optional, inside cabinet)
12 Filter
13 Standard Stamped-Return Air Grille
14 Removable Hinged Access Panel
15 Supply, Return Connections,
5
/
8
-in. OD
16 Supply Grille, Stamped, Standard
17 Drain Pan
NOTES:
1. Right hand unit shown; left hand unit opposite. Coil connection
locations are ±
5
/
8
-inch.
2. Unit sizes 02 and 03 have one motor, one blower; sizes 04
through 08 have one motor, 2 blowers; sizes 10 and 12 have
2 motors, 4 blowers.
3. Cabinet has an Arctic White baked finish.
4. Refer to supply and return connections above for coil stub-out
locations.
5. Not shown: 3-speed fan switch; wall plate;
1
/
2
-in. fiberglass
insulation on inside of casing, closed cell foam on main drain
pan.
6. For optional coil connections, view 42CA-203-1 using the Fan
Coil Builder.
7. Valve package is factory-installed inside the cabinet when
ordered with the unit (based on component size).
8. Dimensions shown in inches (mm).
*Unit weights are based on dry coils and minimum rows. Weights exclude packaging, valves, and other components.
UNIT
SIZE
NOM
AIRFLOW
(Cfm)
DIMENSIONS (in.) QTY/UNIT FACE
AREA
(sq ft)
UNIT
WEIGHT*
(lb)
ABCEFG
Blower Motor
02 200 38 17
1
/
8
10
7
/
16
34 5
3
/
4
11 1 1 0.83 98
03 300 42 21
1
/
2
10
1
/
4
38 5
3
/
4
11 1 1 1.08 118
04 400 48 25
7
/
8
11
1
/
16
44 5
3
/
4
11 2 1 1.35 126
06 600 53 34
5
/
8
9
3
/
16
49 6
3
/
4
12 2 1 1.88 168
08 800 60 39 10
1
/
2
56 6
3
/
4
12 2 1 2.31 176
10 1000 74 52
1
/
8
10
15
/
16
70 6
3
/
4
12 4 2 3.16 215
12 1200 82 60
7
/
8
10
9
/
16
78 6
3
/
4
12 4 2 3.65 245
A42-4106

Related product manuals