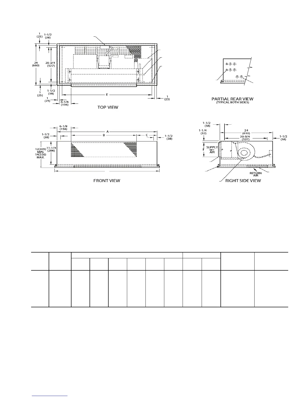
Fig. 7 — 42CK Horizontal Cabinet Unit with Telescopic Access Panel,
*Unit weights are based on dry coils and minimum rows. Weights exclude packaging, valves, and other components.
UNIT
SIZE
NOM
AIRFLOW
(Cfm)
DIMENSIONS (in.) QTY/UNIT BOTTOM
RETURN
FILTER SIZE
(in.)
UNIT WEIGHT*
(lb)
ABCDEFBlowerMotor
02 200 35 16 12
3
/
4
37 32 6 1 1 10 x 23
1
/
2
115
03 300 35 20 8
3
/
4
37 32 6 1 1 10 x 28 120
04 400 41 26 8
3
/
4
43 38 6 2 1 10 x 32
1
/
2
135
06 600 53 31 15
3
/
4
55 50 7 2 1 10 x 37 150
08 800 53 38 8
3
/
4
55 50 7 2 1 10 x 41 155
10 1000 75 52 16
3
/
4
77 72 7 4 2 10 x 54
1
/
2
227
12 1200 75 60 8
3
/
4
77 72 7 4 2 10 x 63 241
LEGEND
1 — Junction Box
2 — L-shape Drip Lip (optional, shipped loose)
3 — Chilled/Hot Water Supply and Return Connection
4 — Resilient Mounting Grommets with
3
/
8
-in. Diameter Hole
(typically 4)
5 — Electrical Knockout,
7
/
8
-in. Diameter
6 — Drain Knockout, 1
1
/
2
-in. Diameter
7 — Stamped Return Air Grille and 1-in. Filter
8 — Condensate Drain Connection,
7
/
8
-in. OD
9 — Hinged Bottom Return Air Panel
10 — Supply Duct Collar, 1-in. OD
A42-4149
NOTES:
1. Right hand unit shown; left hand unit opposite.
2. Internal factory valve package and drains may not align with cabinet
knockouts.
3. Dimensions shown in inches (mm). All dimensions are ±
1
/
4
inches.
4. Bottom panel is Arctic White polyester powder coat paint.