EasyManua.ls Logo

Carrier 48TJD - Factory Installed Connections; Economi$Er Wiring; Economi$Er Sensor Wiring

Carrier 48TJD
52 pages
To Next Page IconTo Next Page
To Next Page IconTo Next Page
To Previous Page IconTo Previous Page
To Previous Page IconTo Previous Page
Loading...
17
OUTDOOR
AIR
SENSOR
TEMP
TEMP
COM
OUT
PWR
BROWN
VIOLET
WHITE
RED
BROWN
TEMP
TEMP
COM
OUT
PWR
RETURN
AIR
SENSOR
VIOLET
WHITE
RED
OAT
COM
OAH
-15 V
RAT
COM
RAH
+15 V
ECONOMI$ER
CONTROLLER
PINK
TEMP
TEMP
VIOLET
SUPPLY AIR
TEMPERATURE SENSOR
V+
24
COM VAC
SENSOR
CO
2
(+)
COM
DAT
COM
REM POT
COM
LED
COM
CO
2
CO
2
LEGEND
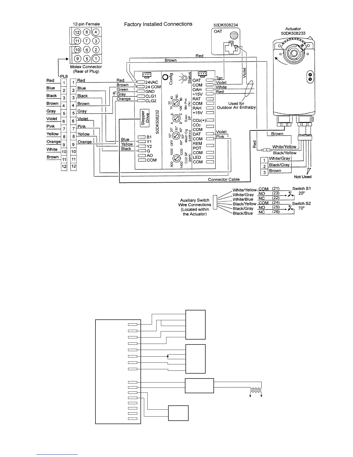
Fig. 33 EconoMi$er Wiring
OAT
Outdoor-Air Thermostat
Fig. 34 EconoMi$er Sensor Wiring

Table of Contents

Related product manuals