EasyManua.ls Logo

Carrier 50TC*D17 Series - Page 8

Carrier 50TC*D17 Series
36 pages
To Next Page IconTo Next Page
To Next Page IconTo Next Page
To Previous Page IconTo Previous Page
To Previous Page IconTo Previous Page
Loading...
50TC*D
8
C09139
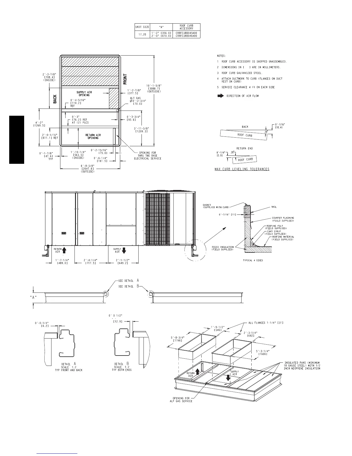
Fig. 4 -- Roof Curb Details 17 and 20 Size Units

Related product manuals