EasyManua.ls Logo

Carrier 52SE - Page 6

Carrier 52SE
20 pages
Print Icon
To Next Page IconTo Next Page
To Next Page IconTo Next Page
To Previous Page IconTo Previous Page
To Previous Page IconTo Previous Page
Loading...
52S
SERIES
6
SLEEVE INSTALLATION REQUIREMENTS (cont)
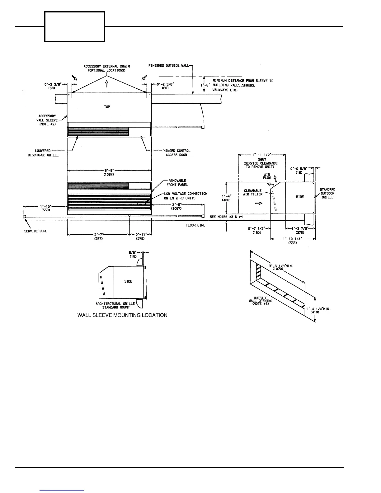
FIGURE 6 — DIMENSION DRAWING — 52SC,SE,SQ
NOTES FOR FIGURES 6-8
1. Minimum opening sizes apply to all wall openings.
2. Installed wall sleeve must be level from side to side and front to back.
3. Sleeve can be flush mounted to floor, but front panel may have to be
notched to accommodate service cord, except for units with subbase
(see Note 4).
4. When using subbase accessory, wall sleeve must extend 3
1
/
4
-in.
minimum into room and 3
1
/
4
in. minimum to 5
1
/
2
in. maximum above
floor.
5. Dimensions in parentheses are in millimeters.
6. For all applications with an accessory lateral duct, sleeve must ex-
tend into the room 1 in. minimum.
7. If wall sleeve extends into room more than 4 in., an accessory sub-
base must be used for support.
8. If wall is less than 2 in. thick, an accessory subbase must be used for
support.

Related product manuals