EasyManua.ls Logo

Carrier 52SE - ACCESSORY INSTALLATION; INSTALL ACCESSORY HARDWIRE KIT OR 265-v ACCESSORY CORD-CONNECTED KIT; INSTALL THERMOSTAT

Carrier 52SE
20 pages
Print Icon
To Next Page IconTo Next Page
To Next Page IconTo Next Page
To Previous Page IconTo Previous Page
To Previous Page IconTo Previous Page
Loading...
9
ACCESSORY INSTALLATION
INSTALL ACCESSORY HARDWIRE KIT OR 265-v
ACCESSORY CORD-CONNECTED KIT —
Install
Carrier accessory hardwire kit according to the
instructions provided with the accessory. The acces-
sory cord-connected kit is for 265-v units only, and
requires an accessory subbase, Part No. SUBBASE,
with a field-installed receptacle.
INSTALL THERMOSTAT
All remote control
units.
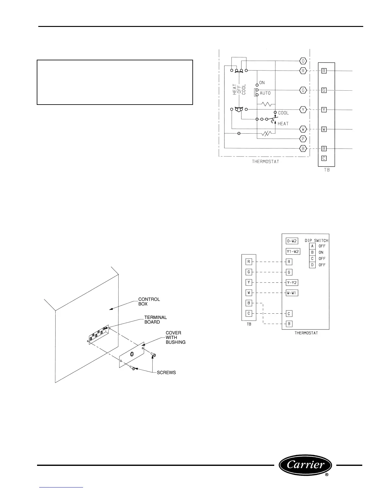
1. Check to be sure power to unit is disconnected.
2. Remove terminal board cover from right side of
chassis (see Figure 12).
3. Insert field-supplied low-voltage thermostat wire
through bushing on the cover.
4. Connect wires from terminals on the thermostat
to terminals on chassis terminal board. See Fig-
ures 13A and 13B.
5. Reinstall cover with two screws.
6. Mount field-supplied thermostat to wall.
7. Set thermostat anticipator at 0.8 amp (manual
thermostat only).
IMPORTANT: Only trained, qualified personnel
and service mechanics should install electrical
accessories on Carrier 52S series products per
Carrier’s installation instructions. Please contact
your local electrical contractor, dealer, or distribu-
tor for assistance.
FIGURE 12 — LOW-VOLTAGE TERMINAL BOARD
LEGEND
TB —
Terminal Board
NOTE: B to B connection for heat pump only.
FIGURE 13A — WIRING CONNECTIONS,
LOW-VOLTAGE MANUAL CHANGEOVER
THERMOSTAT
LEGEND
TB —
Terminal Board
NOTE: B to B connection for heat pump only.
FIGURE 13B — RC WIRING CONNECTIONS,
PROGRAMMABLE THERMOSTAT

Related product manuals