EasyManua.ls Logo

Carrier 58MCB080 - Page 7

Carrier 58MCB080
20 pages
Print Icon
To Next Page IconTo Next Page
To Next Page IconTo Next Page
To Previous Page IconTo Previous Page
To Previous Page IconTo Previous Page
Loading...
7
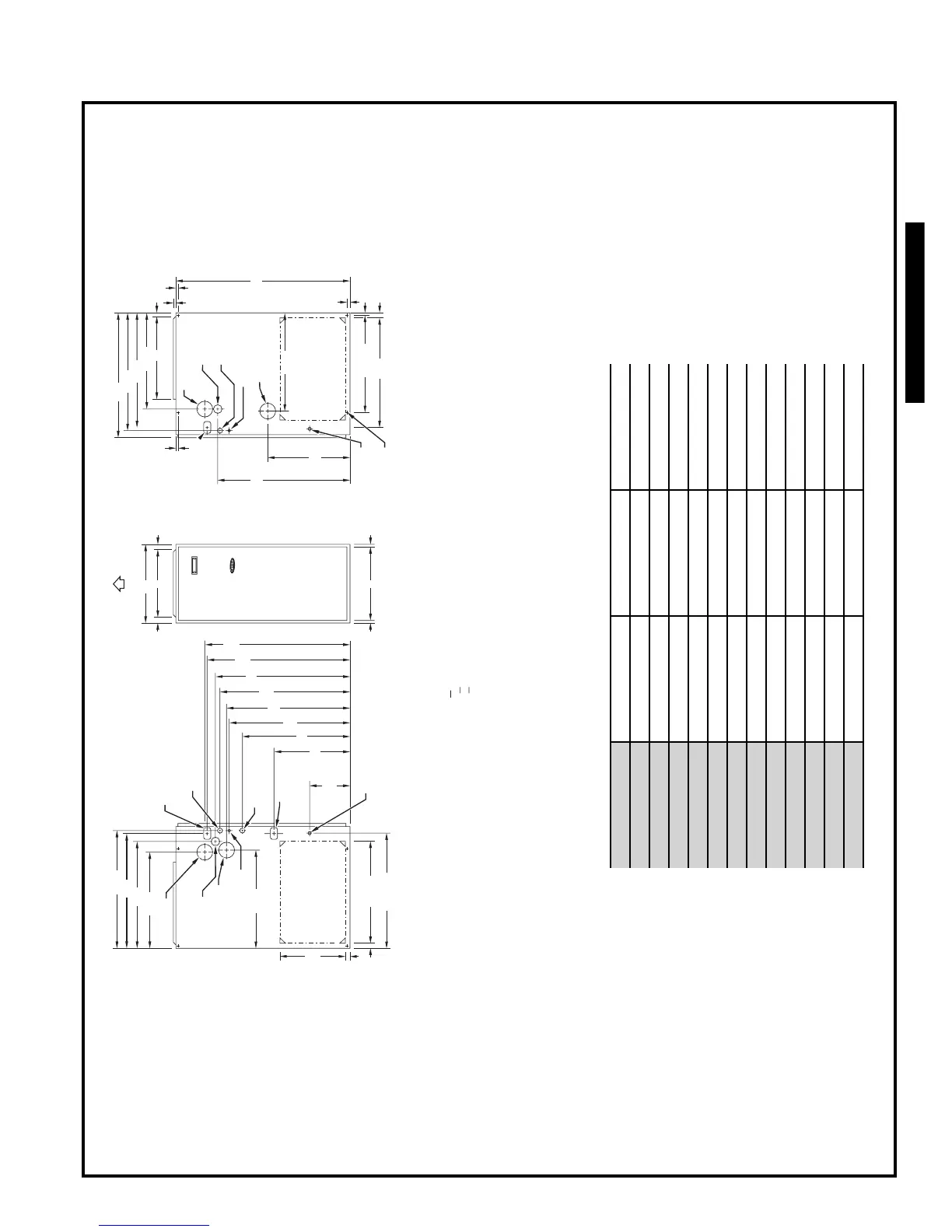
58MCB
1
1
4"
1"
13
16"
5
8"
5
16"
1"
39
7
8
"
11
16"
7
16"
14
1
2"
TYP
17
5
16"
24
1
2"
27
9
16"
TYP
27
5
8"
29
11
16"
TYP
30
13
16"
32
5
8"
TYP
33
1
4"
TYP
CONDENSAT E
DRAIN TRAP
LOCATION
(ALTERNATE
UPFLOW)
7
8-IN. DIA
ACCESSORY
POWER ENTRY
7
8-IN. DIA
POWER CONN
CONDENSATE DRAIN
TRAP LOCATION
(DOWNFLOW &
HORIZONTAL LEFT)
26
15
16"
24
1
2"
22
5
16"
2-IN. COMBUSTION-
AIR CONN
1
2-IN. DIA
GAS CONN
2-IN. VENT CONN
1
2-IN. DIA THERMOSTAT
ENTRY
22
11
16"
SIDE INLET
23
1
4" TYP
SIDE INLET
OUTLET
26
15
16"
28
1
2"
22
5
16"
19"
22
1
4" TYP
24
3
16"
BOTTOM INLET
18
1
4"
22
11
16"
2-IN. COMBUSTION-
AIR CONN
1
2-IN. DIA
GAS CONN
7
8-IN. DIA
POWER CONN
1
2-IN. DIA
THERMOSTAT E N TRY
2-IN. VENT CONN
DIMPLE LOCATORS
FOR HORIZONTAL
HANGING
SIDE INLET
9
7
16"
TYP
26
15
16" TYP
CONDENSAT E
DRAIN LOCATION
(UPFLOW)
30
1
2"
9
16"
TYP
CONDENSAT E
DRAIN LOCATION
(UPFLOW)
E
INLET
11
/16"
11
/16"
D
13
/16"
13
/16"
OUTLET
A
AIRFLOW
26
1
4"
26
1
4"
CONDENSATE DRAIN
TRAP LOCATION
(DOWNFLOW &
HORIZONTAL RIGHT)
OR ALTERNATE
1
2
-IN. DIA GAS CONN
NOTES: Minimum return-air opening at furnace, based on metal
duct. If flex duct is used, see flex duct manufacturer's
recommendation for equivalent diameters:
1. For 800 CFM 16-in. round or 14-
1
/2 X 12-in. rectangle.
2. For 1200 CFM 20-in. round or 14-
1
/2 X 19-
1
/2 in. rectangle.
3. For 1600 CFM 22-in. round or 14-
1
/2 X 23-
1
/4 in. rectangle.
4. For airflow requirements above 1800 CFM, see Air Delivery
Table in Product Data literature for specific use of single side
inlets. The use of both side inlets, a combination of 1 side and
the bottom, or the bottom only will ensure adequate return-air
openings for airflow requirements above 1800 CFM at 0.5î W.C. ESP.
Dimensions
A05105
DIMENSIONS (In.)
UNIT SIZE A D E
040-08
17-1/2 15-7/8 16
040-12
17-1/2 15-7/8 16
060-08
17-1/2 15-7/8 16
060-12
17-1/2 15-7/8 16
060-16
17-1/2 15-7/8 16
080-12
17-1/2 15-7/8 16
080-16
17-1/2 15-7/8 16
080-20
21 19-3/8 19-1/2
100-16
21 19-3/8 19-1/2
100-20
21 19-3/8 19-1/2
120-20
24-1/2 22-7/8 23
140-20 24-1/2 22-7/8 23

Related product manuals