EasyManua.ls Logo

Carrier 59SP5A - Page 6

Carrier 59SP5A
78 pages
Print Icon
To Next Page IconTo Next Page
To Next Page IconTo Next Page
To Previous Page IconTo Previous Page
To Previous Page IconTo Previous Page
Loading...
6
6 15/16
[176.1]
3
[76.2]
3
[76.2]
6 11/16
[170.1]
23 5/16
[592.9]
25 1/8
[638.7]
26 3/8
[670.0]
26 11/16
[678.1]
21
[534.0]
26 5/16
[668.8]
17 5/16
[439.2]
16 9/16
[420.9]
20 1/4
[513.9]
25 3/16
[639.1]
28 3/16
[715.9]
28 5/8
[726.4]
32 5/8
[829.5]
28 3/4
[730.5]
26 3/8
[370.0]
26 11/16
[678.1]
22 7/16
[670.0]
21 1/16
[535.8]
26 5/16
[668.8]
3
[76.2]
AIR INTAKE
1 3/4
[44.5]
GAS CONN
7/8
[22.2]
7/8
[22.2] POWER CONN
7/8
[22.2]
7/8
[22.2]
3
[76.2]
AIR INTAKE
1 3/4
[44.5]
GAS CONN
7/8
[22.2]
7/8
[22.2]
THERMOSTAT ENTRY
3
[76.2 ]
7/8
[22.2]
7/8
[22.2]
22 15/16
[581.9]
16 9/16
[420.9]
17 7/16
[442.3]
20 1/4
[513.9]
24
[609.7]
28 3/8
[720.4]
28 5/8
[726.9]
30 7/16
[773.7]
23 3/8
[592.0]
3
[76.2]
VENT
1
[25.4]
1
[25.4]
D
2 3/10
[58.4]
C
BOTTOM RETURN
WIDTH
11/16
[17.5]
11/16
[17.5]
B
OUTLET WIDTH
A
22
[558.3]
14 13/16
[376.3]
35
[889.0]
5/8
[15.8]
1 5/16
[33.3]
29 1/2
[749.3]
19 1/8
[485.8]
VENT
AIR INTAKE
AIR FLOW
AIR FLOW
SIDE INLET
SIDE INLET
CONDENSATE DRAIN TRAP
LOCATION
THERMOSTAT ENTRY
[22.2]
7/8
PART NUMBER
SD5024-4
NEXT SHEET
NONE
7/8
[22.2] POWER CONN
AIR FLOW
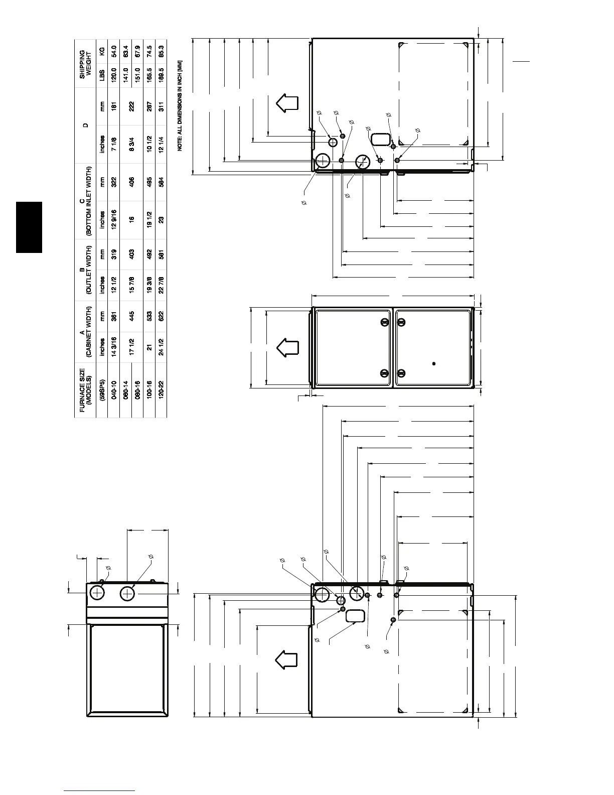
NOTE: Doors may vary by model.
a. For 800 CFM--- 16--- in. (406 mm) round or 14 1/2 x 12--- in. (368 x 305 mm) rectangle.
b. For 1200 CFM--- 20--- in. (508 mm) round or 14 1/2 x 19 1/2--- in. (368 x 495 mm) rectangle.
c. For 1600 CFM--- 22---in. (559 mm) round or 14 1/2 x 22 1/16--- in. (368 x 560mm) rectangle.
d. For airflow requirements above 1800 CFM, see Air Delivery table in these installation instructions for specific use of single side inlets. The use of both side inlets, a combination
of 1 side and the bottom, or the bottom only return air openings may be required for airflow requirements above 1800 CFM at 0.5 in. W.C. E.S.P.
A11521
Fig. 1 -- Dimensional Drawing
59SP5A

Other manuals for Carrier 59SP5A

Related product manuals